 |
 |
|
|
|
|
| |
|

Monika Zorn und Norbert Kretschmer als Ehepaar Bilfinger mit Moderatorin Ariane Schröfel und Norbert Mönig, der sich in Vertretung des 1. Vorsitzenden für die tolle Vorstellung bedankte
Bild: Andreas Gotthardt
Dialogvortrag am 15. April 2026 im evangelischen Gemeindehaus
Im Anschluss an seine Mitgliederversammlung am 15. April präsentierte der AGD dem begeisterten Publikum einen Dialogvortrag zum Schicksal der Stadt und zur ausschlaggebenden Rolle der Festung Hohenasperg im Dreißigjährigen Krieg. Sprecher waren Norbert Kretschmer, Ariane Schröfel und Monika Zorn auf Grundlage des 1790 veröffentlichten Tagebuchs von Wendel Bilfinger. Der Gröninger Stadtpfarrer flüchtete nach der Niederlage bei Nördlingen 1634 mit seiner und weiteren betuchten Familien auf die Festung und dokumentierte deren einjährige Belagerung durch kaiserliche Truppen. Darüber hinaus wurde die desaströse Kriegsbilanz für die Stadt und ihre Amtsflecken präsentiert. Tagebuch von Pfarrer Wendel Bilfinger [PDF]
|
|
Bei der Mitgliederversammlung des AGD am 15. April 2026 standen keine Wahlen an. Ariane Schröfel präsentierte den Bericht des ersten Vorsitzenden Günther Mertz, der seine Teilnahme wegen eines Trauerfalls kurzfristig absagen musste. Schatzmeister Jens Haug erläuterte den mit der Einladung versandten Kassenbericht. Kassenprüfer Norbert Mönig bescheinigte ihm eine einwandfreie Kassenführung und beantragte die Entlastung der Vorstandschaft. Peter Fendrich stellte den aktuellen Projektstand zum Haus der Vereine im Schießhäusle vor. Insgesamt nahmen 39 von 140 Mitgliedern an der Versammlung teil. Dr. Monika Balzert wurde für 50-jährige Mitgliedschaft geehrt.
 |
|
 |
|
–
Dr. Monika Balzert wurde für 50-jährige Mitgliedschaft geehrt
|
|
–
Vorstandsmitglieder Ariane Schröfel, Peter Fendrich und Jens Haug
Bilder Andreas Gotthardt
|
| |
|
|
|
|

Teams von BUND und AGD am Treffpunkt im oberen Glemstal
Bild: Günther Mertz
BUND und AGD waren am 14. März 2026 wieder gemeinsam im Einsatz
|
|
An der von der Stadtverwaltung am 14. März 2026 initiierten Markungsputzete wirkten BUND und AGD mit zwei Gespannen und 16 Mitwirkenden mit. Ihr Einsatzgebiet umfasste das Glemstal mit bekannten Hotspots an dessen Hangschultern wie Bereiche am Schlüsselberg oder an der Hälde entlang des Hemminger Wegs. Aufgegabelt wurden neben zahllosen Flaschen auch große Stücke wie Gartenmöbel, Autoreifen oder ein Elektroofen, als ob es keine Sperrmüllkarte gäbe. Zum Abschluss traf man sich mit über hundert weiteren Mitwirkenden zum Vesper im Bauhof.
|
|

Viel Sperrmüll auf dem Anhänger bei der Markungsputzete 2026
Bild: Rudolf Dürr
|
|
|

Raiserhof mit saniertem Gebäude im September 2025 von Nordwesten
Bild: Peter Fendrich
Auszeichnung und zahlreiche Führungen am Tag des Offenen Denkmals 2025
Zum Tag des Offenen Denkmals am 14. September 2025 hatten die evangelische Kirchengemeinde, der Förderverein Bartholomäuskirche, der Bürgerverein und der AGD ein umfangreiches Programm zusammengestellt, das auf ein beachtliches Interesse stieß. Die Führungen im Pfarrhaus, im Eiskeller oder in der Bartholomäuskirche waren ebenso gefragt wie die themenorientierten Stadtführungen. Insgesamt wurden in Markgröningen 17 unterschiedliche Programmpunkte angeboten. Großes Interesse weckte auch die Verleihung des gemeinsam von Stadt und AGD ausgelobten Sanierungspreises auf dem Kirchplatz. Er ging in diesem Jahr an Lena und Gernot Pflugfelder sowie an Tatiana und Kai Bäßler für die aufwendige Sanierung des Raiserhofs. Die Urkunde und eine Bildergalerie zum Raiserhof stehen im Artikel-Archiv als PDF bereit.

Bei der Verleihung des Sanierungspreises: Bürgermeister Jens Hübner, Helmut Bäßler, der den Preis für Lena und Gernot Pflugfelder entgegennahm, AGD-Vorsitzender Günther Mertz und Kai und Tatiana Bäßler (v. l.)
Bild: Peter Fendrich
|
|
|
Festzugteilnahme und Schäferlaufführungen
Die vom AGD traditionell am Freitag angebotenen Schäferlaufführungen waren wieder gut besucht. Am Samstag und Sonntag wirkte die AGD-Gruppe „Armer Konrad” 2025 zum fünften Mal mit der Bundschuhfahne im Festzug mit. Die Teilnehmer hatten viel Spaß bei ihren Rufen „Nieder mit der Ehrbarkeit!”

AGD-Gruppe „Armer Konrad” während des Schäferlaufs 2025. Weitere Bilder
Quelle: Roswitha Feil
|
| |
|
Präsentation und Würdigung am 21. Juli 2025 in der Ludwig-Heyd-Schule
Für ihr historisches Forschungsprojekt „(Wander)Schäfer – unterwegs zwischen den Grenzen, Grenzgänger in der Gesellschaft” erhielten Theodor Hellwig, Clemens Liebing, Gregor Liebing, Meike Liebing und Sophia Seyboth den Förderpreis des Bundespräsidenten. Diesen Erfolg würdigte der AGD mit einer Info-Veranstaltung und Feierstunde am 21. Juli 2025 im Atrium der Ludwig-Heyd-Schule. Das Schülerteam stellte seine prämierte Arbeit zur Schäferei und das selbst entwickelte Brettspiel vor, in dem man sich in die Rolle eines Schäfers versetzt und in jedem Jahrhundert ein Jahr durchspielt.
Der AGD erhofft sich davon eine Initialzündung zur Etablierung einer Jugendgruppe. Bis zum Alter von 24 Jahren erhebt der AGD keine Mitgliedsbeiträge.

Vorstand Günther Mertz präsentiert die preisgekrönte Kindergruppe in der Aula der Ludwig-Heyd-Schule
Bild: Helmut Hermann
|
|
|
Erster Arbeitseinsatz des Konsortiums für das Haus der Vereine am 21. Juni 2025
Die Sonnenseite des Schießhäusles ist wieder sichtbar. Mitglieder von AGD, BUND, Bürgerverein und Landfrauen trafen sich am 21. Juni zu einem ersten gemeinsamen Arbeitseinsatz ihres Vereinskonsortiums in Gründung, um die Thuja-Hecke um die Terrasse zu roden und weiteren Wildwuchs zurückzuschneiden. Die Pflegemaßnahme war zeitnah erforderlich, damit der nicht mehr benötigte Flüssiggas-Tank ausgegraben und von der Firma Lotter abgeholt werden kann. Sobald der Tank entfernt ist, soll die Terrasse so nivelliert werden, dass sie nach Süden ins Gelände ausstreicht. Somit wird beim künftigen Haus der Vereine eine variable Bewirtschaftungsfläche geschaffen.
|
 |
|
 |
|
–
Damit der unterirdische Flüssiggastank ausgebaut werden kann, musste die Terrasse gerodet werden
Bild: Peter Fendrich 2025
|
|
–
Stefan Hahn, Rudolf Dürr, Jörg und Sabine Albrecht, Dietlinde Neerpasch-Ehrle und Leo Fendrich
Bild: Peter Fendrich 2025
|
|
| |
|
Mitgliederversammlung des AGD am 26. März 2025 im Evang. Gemeindehaus
Im Rahmen seiner Mitgliederversammlung gedachte der AGD seiner verstorbenen Mitglieder Rainer Christmann, Heinz Oechsner und Irmgard Schuler. Ein Mitglied ist ausgetreten und sechs neue sind hinzugekommen. Im Namen des Vereins ehrte der Vorsitzende Günther Mertz Heribert Wißkirchen und Hans-Jürgen Schroff für 40-jährige Mitgliedschaft und bedankte sich bei Otto Beck, der von 2017 bis 2024 das Amt des Schatzmeisters bekleidete, und bei Stephan Fritsch, der seit 2019 dem Fachbeirat angehörte.
Die anstehenden Wahlen von Vorstand, Fachbeirat und Rechnungsprüfern wurden in offener Wahl vollzogen. Dabei wurden die Vorstandsmitglieder Günther Mertz (1. Vors.), Ariane Schröfel (2. Vors.), Peter Fendrich (Schriftführer) und Jens Haug (Schatzmeister) ebenso einstimmig wiedergewählt wie die Beiratsmitglieder Rudolf Dürr, Christian Elser, Erwin Elser, Roswitha Feil, Helmut Hermann, Wolfgang Löhlein, Cornelia Pagel und David Zechmeister. Neu berufen wurden Yvonne Lang und Dietlinde Neerpasch-Ehrle. Alexandra Knörzer und Norbert Mönig wurden als Rechnungsprüfer bestätigt.
Die von Peter Fendrich beantragte Einlage von 2500 Euro für das Konsortium zum Haus der Vereine im Schießhäusle wurde bei sechs Enthaltungen bewilligt.
|

Ernennung von Jürgen Schroff zum Ehrenmitglied
|

Günther Mertz dankt Schatzmeister Otto Beck
|

Ariane Schröfel dankt Beirat Stephan Fritsch
|
|

35 von 141 Mitgliedern waren bei der Mitgliederversammlung am 26. März 2025 präsent
Bilder: Peter Fendrich
|
|
| |
|
Preis für Sanierung der Krone an Rainer und Renate Gessler verliehen
Umfangreiches Programm zum Tag des offenen Denkmals am 8. September 2024
Zum Tag des offenen Denkmals hatten die evangelische Kirchengemeinde, der Förderverein Bartholomäuskirche und der AGD ein umfangreiches Programm zusammengestellt, das trotz zweifelhafter Witterungsaussichten auf großes Interesse stieß. So waren die Eintrittskarten für die beiden Eiskeller-Führungen im Nu vergriffen und selbst beim zeitaufwendigen Stadtrundgang wurde das Teilnehmer-Maximum erreicht. Groß war der Andrang auch bei der Verleihung des gemeinsam von Stadt und AGD ausgelobten Sanierungspreises an Rainer und Renate Gessler für die Sanierung des denkmalgeschützten Gasthauses zur Krone. Die Urkunde und eine Bildergalerie zur Krone stehen als PDF zum Download bereit.
|

Publikum vor dem Info-Stand des AGD und dem Bewirtungsstand des Fördervereins Bartholomäuskirche
Bilder: Peter Fendrich (zum Vergrößern Bilder anklicken)
|
|

Bürgermeister Jens Hübner, Renate und Rainer Gessler und der AGD-Vorsitzende Günther Mertz bei der Preisverleihung
Bild: Peter Fendrich_
|
|
| |
|
Treffpunkt Geschichte mit Roland Essig am 25. Juli 2024
Gemeinsam mit dem Experten Roland Essig erkundete eine AGD-Gruppe den Abschnitt der Neckar-Enz-Stellung im Umfeld der Frauenkirche. Die Neckar-Enz-Stellung (NES) war eine zwischen 1935 und 1938 errichtete Festungslinie. Sie verlief von Eberbach nach Besigheim entlang des Neckars und von Besigheim bis Enzweihingen entlang der Enz, erstreckte sich über 86 km und umfasste 450 Bunker. Auf der Markgröninger Markung sind noch zahlreiche Relikte der NES vorhanden: von Bunkern und Armierungsschuppen, von einem Panzergraben und von verschiedenen Kommunikationseinrichtungen.
|

Gesprengter Bunker beim Ostlandkreuz von Süden
Bilder: Peter Fendrich (zum Vergrößern Bilder anklicken)
|
|

Führer Roland Essig (vorne links) mit Teilnehmern
_
|
|
| |
|
Jahresexkursion des AGD am 29. Juni 2024 nach Bad Wimpfen
Zum Wimpfener Talmarkt bot der AGD seinen Mitgliedern eine Exkursion in die geschichtsträchtige Stadt an, deren Siedlungsspuren bis in die Jungsteinzeit reichen und deren Entwicklung im Mittelalter einige Parallelen zur ehemaligen Reichsstadt Grüningen erkennen lässt.
Auf dem 1170 als westlicher Bergfried der Königspfalz errichteten Blauen Turm lud die Türmerin Blanca Knodel zum Sektempfang. Sie wohnt seit 1996 – zeitweise mit ihren drei Kindern – hoch oben in ihrem, wie sie sagt, „höchsten Tiny House“ auf 54 Quadratmetern. Informativ und ebenso launisch und humorvoll erzählte sie von ihrem Leben als Türmerin, ihren Erfahrungen mit den Turmbesuchern und der „Obrigkeit“.
Anschließend ließ der historisch sehr bewanderte Stadtführer Bernd Wetzka die Geschichte der alten Reichsstadt während eines zweistündigen Rundgangs durch die viel besser als in Markgröningen erhaltene Altstadt Revue passieren. Besonders stolz sind die Wimpfener auf ihre große Königspfalz, in der sich der Staufer-Kaiser Friedrich II. mindestens acht Mal aufhielt und hier 1235 seinen Sohn Heinrich VII. absetzte. Das Wimpfener Heilig-Geist-Spital entstand ebenso wie das Grüninger Pendant im 13. Jahrhundert. Seit 965 hat Wimpfen im Tal Marktrecht. Der alljährlich zu Sankt Peter abgehaltene sechstägige Talmarkt gilt daher als der erste urkundlich belegte Jahrmarkt in Baden-Württemberg. Bei Temperaturen von über 30 Grad war der Ausklang im Biergarten inmitten der Wimpfener Oberstadt hochwillkommen.
|
 |
|
 |
| |
|
|
|
Stadtführer Bernd Wetzka vor dem Blauen Turm in Wimpfen
Bild: Roswitha Feil
|
|
Teilnehmer an der Jahresexkursion des AGD am 29. Juni 2024 nach Bad Wimpfen
Bild: Mechthild Fendrich
|
|
| |
|
Mitgliederversammlung am 18. April 2024 in der Aula des Hans-Grüninger-Gymnasiums
Zu Beginn der Mitgliederversammlung am 18. April 2024 gedachten die 33 Anwesenden den verstorbenen Mitgliedern Heinrich Beck, Hartmut Beller und Franz Schuster. Manfred Eberhard wurde für 40 Jahre Mitgliedschaft geehrt. Neu hinzugekommen sind Stephan Rotzler, Dr. Christoph Schlude und Caroline Wenninger. Bei seinem Jahresrückblick hob der AGD-Vorsitzende Günther Mertz das erfolgreich eingeführte Format „Treffpunkt Geschichte” und den herausragenden Internet-Auftritt des Vereins hervor, der mittlerweile knapp 2,7 Mio. Seitenaufrufe verbuchen könne. Der Bürgerverein habe seine avisierte Verschmelzung mit dem AGD vorerst ausgesetzt. Beim Ausblick aufs Jahresprogramm ermunterte Mertz die Mitglieder zur Anmeldung für die Jahresexkursion nach Wimpfen und zur Mitwirkung als Museumsaufsicht. Einige vom AGD zu belegenden Sonntagnachmittage seien noch offen.
Schatzmeister Otto Beck erläuterte seine mit der Einladung verschickte Jahresbilanz und kündigte „altershalber” seinen Rücktritt zum Ende des Geschäftsjahres 2024 an. Um eine geregelte Amtsübergabe vor der Mitgliederversammlung im Frühjahr 2025 zu gewährleisten, wurde die Wahl eines Nachfolgers vorgezogen. Das bisherige Beiratsmitglied Jens Haug wurde in offener Wahl einstimmig gewählt.
Die Mitgliederversammlung fand in der Aula des Hans-Grüninger-Gymnasiums statt, um dem aus Köln angereisten Referenten Thomas Schuler für seinen anschließenden Vortrag über Napoleons Spuren in Württemberg ein großes Forum bieten zu können. Doch Schüler waren im Publikum leider nicht zu finden. Sie hätten erfahren können, dass das Geschichtsbild über Napoleon stark von der Propaganda seiner Gegner geprägt wurde. Denn er sei, so Schuler, weder ein Kriegstreiber noch kleinwüchsig, sondern mit 1,68 m größer als ein zeitgenössischer Durchschnittsmann gewesen. So sehr Napoleon bei Vertretern des Ancien Regime verhasst war, hätten ihn Intellektuelle wie Goethe und Heine bewundert.
|
|

Otto Beck zieht letztmals Bilanz
Bild: Peter Fendrich
–
|
|

Künftiger Schatzmeister Jens Haug
Bild: Peter Fendrich
|
|

Referent Thomas Schuler
Bild: Peter Fendrich
|
|
| |
| Führung mit Archivarin Edith Holzer-Böhm am 13. März 2024 |
|
|

Archivarin Edith Holzer-Böhm im Magazin
Bild: Peter Fendrich
|
|
Das Stadtarchiv lagert das „Rohmaterial der Stadtgeschichte“ und sorgt dafür, dass „das ‚Gedächtnis‘ der Stadt auch morgen noch funktioniert“. Doch wie wird das Archivgut ausgewählt und wie ist es strukturiert? Und wie erfolgt die gezielte Suche nach Archivalien zu einzelnen Themen? Wie arbeitet man mit den Archivalien? Diese und weitere Fragen sollten bei dem schnell ausgebuchten „Treffpunkt Geschichte: Stadtarchiv Markgröningen“ am 13. März 2024 geklärt werden.
Archivarin Edith Holzer-Böhm stellte das Magazin im Keller und ausgewählte Archivalien vor. Eindruck machte insbesondere das mächtige Lagerbuch aus dem 18. Jahrhundert.
|
|
| |
|
Vorträge im Gemeindehaus und Führungen durchs Pfarrhaus am 28. Februar 2024
Zum Treffpunkt Geschichte am 28. Februar 2024 hörten 58 Besucher die Vorträge des ehemaligen Pfarrers Traugott Plieninger und des Kirchengemeinderats Armin Bäßler im benachbarten Gemeindehaus. Plieninger referierte über die Geschichte des „ältesten evangelischen Pfarrhauses in Württemberg” und das Leben seiner Familie in der seit ihrem Auszug leer stehenden Dienstwohnung. Bäßler referierte über die seit 25 Jahren hinausgeschobene Sanierung und den aktuellen Stand der überaus zähen Verhandlungen mit dem Land als Eigentümer. Anschließend führten die Referenten mit Pfarrersohn Gottfried Kumpf, der im Pfarrhaus aufgewachsen ist, durch das geschichtsträchtige Gebäude. Für dessen unverzügliche Sanierung werde sich, so der Vorsitzende Günther Mertz, auch der AGD stark machen. Der SWR berichtete in der Landesschau vom 18. März darüber.
|
|

Führung durchs Pfarrhaus beim Treffpunkt Geschichte am 28.2.2024
Bilder: Peter Fendrich
–
|
|

Pfarrersohn Gottfried Kumpf und Pfarrer Traugott Plieninger haben im Pfarrhaus gewohnt.
|
|

Armin Bäßler über die Verhandlungen zur Renovierung
|
|
|
Zahlreiche Führungen und Preisverleihung am Tag des Offenen Denkmals 2023
Erstmals verliehen AGD und Stadt Markgröningen den gemeinsam ausgelobten Sanierungspreis beim Tag des Offenen Denkmals am 10. September 2023 auf dem Kirchplatz. Ausgezeichnet wurden Ingrid und Thomas Farian für die Sanierung und Konversion der Scheuer An der Mauer 3 zum Wohnhaus (siehe Urkunde).
In Kooperation mit der evangelischen Kirchengemeinde und dem Förderverein Bartholomäuskirche bot der AGD ein umfangreiches Programm mit 21 Führungen und Besichtigungsmöglichkeiten in Markgröningen an. Bei bestem Wetter stieß das Programmangebot auf große Resonanz. Als Besuchermagnet entpuppte sich erneut die drei Mal angebotene Führung durch den Eiskeller am Schäferweg, zu der fast 100 Interessierte kamen. Zuvor hatte Fritz Fendrich die sieben Kellerräume, die im Zweiten Weltkrieg als Luftschutzbunker dienten, mit einem Laser vermessen, so dass man nun abschätzen kann, wie weit dieser beeindruckende Felsenkeller in den Benzberg hineinreicht und wo sich auf dem heutigen „Place de Saint-Martin-de-Crau” die Luke zum Befüllen seines Eissilos befand (siehe Bilder und Lageskizze). Darüber hinaus sind noch Fragen zur Fragen zur Luftzirkulation und Entwässerung zu klären. Vom Stadtarchiv erhofft sich der AGD Hinweise zur Bauzeit, zur Nutzung und zu den Umbaumaßnahmen während des Zweiten Weltkriegs.
|
|

Über hundert Besucher ließen sich durch die sieben Räume des Eiskellers führen. Zuvor wurden sie vermessen und die Gesamtlänge errechnet.
Bild: Peter Fendrich
|
|

Bürgermeister Jens Hübner (links) und AGD-Vorsitzender Günther Mertz (rechts) verleihen Ingrid und Thomas Farian den Sanierungspreis
Bild: Peter Fendrich
|
|
|
Kellerführungen von AGD-Mitgliedern am 20. und 21. Juli 2023 für Markgröningen aktiv
Die Gewölbekeller in der Altstadt sind mitunter noch viel älter als die Häuser, die über ihnen stehen. Am 20. und 21. Juli öffnete Markgröningen aktiv gemeinsam mit dem AGD und dem OWG die Tore zu dieser ansonsten verborgenen Welt. Im Pfarrkeller erwartete die jeweils über hundert Teilnehmer eine Inszenierung von Norbert Kretschmer, Ariane Schröfel und Gabriele Weigel. Unter Marktplatz 6 informierten Christian und Erwin Elser über Weinbau und Kellerwirtschaft, unterm Wimpelinhaus zeigten Monika Zorn als Herrin und Roswitha Feil als ihre Magd, für was die Keller außerdem gebraucht wurden. Unterm Landesfruchtkasten stellten David Zechmeister und Peter Fendrich neben dem Keller den letzten begehbaren Abschnitt des umfangreichen Gangnetzes unter der Altstadt vor, das zur Wasserversorgung und als Fluchttunnel diente. Am Donnerstag musikalisch begleitet von Alban Wekenmann. Abschließend trafen sich alle Gruppen in der Unteren Kelter zum Umtrunk.
|
|

David Zechmeister und Alban Wekenmann boten im Keller des Landesfruchtkastens einen gelungenen Mix aus Information und Unterhaltung
Bild: Peter Fendrich
|
|

Abschluss der Kellerspaziergänge in der Unteren Kelter: Susanne Schmidt-Hannig, Vors. von Markgröningen aktiv (oben), bedankt sich bei den Führern des AGD
Bild: Peter Fendrich
|
|
| |
|
Enthüllung bei der Sankt-Johännser-Hocketse von AGD und OWG am 18. Juni 2023
Großen Zulauf verzeichnete der AGD am 18. Juni beim morgendlichen Programm mit der Enthüllung einer Info-Tafel zur Schlüsselburg am Schafstall, einer Führung über den Burgstall und zur Sankt-Johännser-Allmende, wo im Rahmen eines Festaktes das von David Zechmeister angefertigte Kreuz am Standort der ehemaligen Kapelle eingeweiht wurde, der die Markgröninger Weinlage „Sankt Johännser” ihren Namen verdankt.
Die im Anschluss an den Festakt zusammen mit dem Obst-, Wein- und Gartenbau-Verein (OWG) veranstaltete Hocketse verlor hingegen mit zunehmender Hitze mehr und mehr Gäste. Trotz der damit verbundenen Umsatzeinbußen zogen die Vorsitzenden Christian Elser (OWG) und Günther Mertz (AGD) eine positive Bilanz und dankten den zahlreichen Mitwirkenden.
|
 |
|
 |
|
Am 18. Juni 2023 angebrachte Info-Tafel zur Geschichte der Schlüsselburg und der Sankt-Johann-Kapelle mit einem Einblick in die Ergebnisse der vom AGD beauftragten Archäoprospektion auf dem Burgstall und auf der Sankt-Johännser-Allmende
Bild: Peter Fendrich
Weitere Bilder (Schlüsselburg)
|
|
Die Referenten nach dem Festakt: Bernhard Ritz (OWG), Pfarrer Dr. Frank Dettinger (evang. Kirchengemeinde), Dr. Xaver Straßburger (kath. Kirchengemeinde), Bürgermeister Jens Hübner und Günther Mertz (AGD) nach der Einweihung des Sankt-Johann-Kreuzes
Bild: Roswitha Feil
Weitere Bilder (Sankt-Johann-Kreuz)
|
| |
|
|
|
|
Gelungene Kooperation von Musikverein und AGD am 22. April 2023
Fünf Gruppen à 20 Teilnehmern starteten an fünf verschiedenen Standorten, an denen – begleitet von Musikern des Musikvereins – unter dem Motto „Mir hen’s net leicht” historische Figuren vorgestellt wurden: Pfarrer Reinhard Gaißer und Vogt Philipp Volland, Spitalmeister Johannes Betz, ein Türmer, eine Apothekerin und Annemarie Griesinger. Zum Abschluss trafen sich alle Gruppen im Schlosshof, wo sie eine stimmungsvolle Serenade inklusive Markgröninger Marsch erwartete.
|
| |
 |
|
 |
| |
|
|
|
Fanfarenzug mit Otto Breisch (rechts) als Türmer am Oberen Tor
Bild: Rudolf Dürr
|
|
Bläser-Ensemble mit Monika Zorn (rechts) als Apothekerin im Hof der Bartholomäus-Apotheke
Bild: Rudolf Dürr
|
 |
|
 |
| |
|
|
|
Norbert Kretschmer als wortgewaltiger Pfarrer Gaißer auf der Kanzel
Bild: Rudolf Dürr
|
|
Erwin Elser als Spiralmeister Betz vor dem Pfründhaus des Heilig-Geist-Spitals
Bild: Rudolf Dürr
|
|
|
|

Günther Mertz und Otto Beck bei der Präsentation des Rechnungsabschlusses
Bild: Peter Fendrich
|
|

Referent Ludwig Krinn
Bild: Peter Fendrich
|
|
|
Mitgliederversammlung am 28. März 2023 im Spitalkeller
Rückblick: Zur Mitgliederversammlung am 28. März 2023 im Spitalkeller zog der AGD-Vorsitzende Günther Mertz eine positive Bilanz für das zurückliegende Jahr: In seinem Rückblick verwies er auf zahlreiche Veranstaltungen, den neu erschienenen Band der Reihe „Durch die Stadtbrille” über die Grafen von Grüningen und die stetig zunehmenden Seitenaufrufe auf dem Geschichtsportal des AGD. Mittlerweile seien 2,2 Millionen überschritten. Besonders erfreulich sei der Eintritt von 15 neuen Mitgliedern seit der letzten Mitgliederversammlung. Im laufenden Jahr hofft Mertz auf weiteren Zuwachs und rief die Anwesenden auf, jeweils ein Neumitglied zu werben.
Wahlen: Vorstand und Fachbeirat wurden bei Enthaltung der Betroffenen einstimmig entlastet. Als Nachfolger für Birgit Schmitt und Susanne Schoepe wurden Christian Elser und Jens Haug in den Fachbeirat gewählt. Die übrigen acht Beiratsmitglieder und die vier Vorstandsmitglieder stellten sich wieder zur Wahl und wurden in ihren Ämtern bestätigt. Als Nachfolgerin für Margret David wurde Alexandra Knörzer zur Rechnungsprüferin an der Seite von Norbert Mönig gewählt.
Ausblick: 2023 werden so viele Exkursionen wie nie zuvor angeboten. Außerdem wolle der AGD die Ergebnisse der Archäoprospektion auf dem Schlüsselberg und der Sankt Johännser Allmende mittels Info-Tafel am Schafstall und einem Kreuz am Kapellenstandort visualisieren und deren Installation in festlich-geselligem Rahmen einweihen. Beim Tag des Offenen Denkmals im September wird der AGD wieder mit dem Förderverein Bartholomäuskirche kooperieren und seine Anlaufstelle auf dem Kirchplatz einrichten.
Zusammen mit dem Bürgerverein und gegebenenfalls weiteren Vereinen erwägt der Fachbeirat des AGD die Gründung einer Bau- und Betriebsgesellschaft für das Schießhäusle, um es zu einem Haus der Vereine zu entwickeln. Um handlungsfährig zu sein, falls der Gemeinderat dieses von Peter Fendrich im Auftrag des Bürgervereins entwickelte Modell gutheißen sollte und eine Veräußerung an die GbR der Vereine genehmige, holte Mertz die Zustimmung der Mitgliederversammlung per einstimmigem „Vorratsbeschluss” ein.
Vortrag: Im Anschluss an die Mitgliederversammlung referierte Ludwig Krinn aus betont subjektivem Blickwinkel über seinen gleichnamigen Vater, der von 1934 bis 1944 Bürgermeister in Markgröningen war. Artikel zur Ära Krinn (Stadtbrille 6/2000, S. 296ff)
|
|

Publikum beim Vortrag von Ludwig Krinn am 28.3.2023 im Spitalsaal
Bild: Peter Fendrich
|
| |
|
Vortrag von Patricia Leberl am 13. Februar 2023
„Verein für Schäfereigeschichte e. V. – warum altes Wissen heute noch wichtig ist!“ So lautete der Titel des Vortrages, den die 1. Vorsitzende Dr. Patricia Leberl am 13. Februar 2023 im Wimpelinhof hielt. Dabei stellte sie die Aktivitäten und Ziele ihres Vereins vor, der sich dafür einsetze, „das reiche kulturelle Erbe der Schäferei zu dokumentieren und das historische Fachwissen zu sichern.” Die Schafhaltung besitze eine jahrhundertealte Tradition und sei untrennbar mit der Entstehung verschiedener Kulturlandschaften verbunden. In ihrem historischen Rückblick schilderte Leberl den Wechsel von der Weidehaltung zur herrschaftlich dominierten Herdenhaltung in Transhumanz und die Schafzucht in Württemberg. Zuletzt kam der Schäferlauf zur Sprache, der die anschließende Fragerunde dominierte. Der Tenor: Der Schäferlauf müsse wieder mehr ein Fest für die Schäfer werden.
Bürgermeister Jens Hübner und der Verein der Schäferlauffreunde erklärten spontan ihren Beitritt.
|
|

Referentin Dr. Patricia Leberl

Interessiertes Publikum im Scheyhing-Saal des Wimpelinhofs
Bilder: Peter Fendrich
|
| |
|
|
|
Zu Besuch beim Nachbarn am 4. Februar 2023
Im Rahmen der AGD-Reihe „Zu Besuch beim Nachbarn” führte Ingeborg Plachetta, Vorsitzende des Heimat- und Kulturkreises Schwieberdingen, am 4. Februar 2023 durch die Georgskirche und das Heimatmuseum im alten Pfarrhaus. Am Langhaus und am Chor der Georgskirche stießen die AGD-Mitglieder auf die in Gröningen aktiven Baumeister Aberlin Jörg und Peter von Koblenz sowie auf den Heiligen Bartholomäus.
Im reich bestückten Museum konnte man die Arbeits- und Lebenswelt voriger Generationen nachvollziehen. Zu den Dauerexponaten gehören Mobiliar, Geschirr und Handarbeiten jeglicher Art, Küchengerätschaften, Werkzeuge und Maschinen bis hin zu Spiel- und Schulsachen. Im Keller wird an die Vergangenheit als Weinbaugemeinde und an die Lamm-Brauerei Essig erinnert.
|
|

Georgskirche in Schwieberdingen
Bild: Peter Fendrich 2023
|
| |
|
|
|
Adventsmarkt am 4. Dezember 2022
Zum Adventsmarkt am 4. Dezember 2022 im Herrschaftsviertel betreute der AGD das Museum im Wimpelinhof und das Obere Tor. Im Wimpelinhaus wurden Schnitzbrot und AGD-Publikationen zum Kauf angeboten. Im Oberen Tor wurde die Ausstellung „Unsere Altstadt: Verluste, Erfolge, Chancen” nochmals präsentiert.
Darüber hinaus bot Peter Fendrich eine Führung zu Kirche und Burg während der Herrschaft der Grafen von Grüningen und Einblicke in die neue Stadtbrille zu dieser Thematik an.
|
|

Die 180 cm starke Burgmauer im Mittelbau des Schlosses (Ausschnitt)
Bild Peter Fendrich 2022
|
| |
|
|
|
Tag des Offenen Denkmals am 11.9.2022
Gemeinsam mit der evangelischen Kirchengemeinde und dem Förderverein Bartholomäuskirche bot der AGD zum Tag des Offenen Denkmals für Markgröningen ein umfangreiches Programm mit 20 Führungen und Besichtigungsmöglichkeiten an. Bei meist guten Wetterverhältnissen stieß das Programmangebot auf eine gute bis sehr gute Resonanz. Als Highlight entpuppte sich die Führung im Eiskeller am Schäferweg, zu der rund 90 Interessierte kamen. Für fast alle war es die erste Begehung dieses beeindruckenden Felsenkellers, der tief in den Benzberg hineinreicht und im Zweiten Weltkrieg als Luftschutzbunker diente. Sehr gut besucht war auch der Info-Stand des AGD auf dem Kirchplatz, der als Anlaufstelle für Fragen zur Markgröninger Geschichte diente und von zahlreichen Mitgliedern zur Abholung ihres Freiexemplars der neuen Stadtbrille zur Geschichte der Grafen von Grüningen genutzt wurde. Dabei konnte der AGD sieben neue Mitglieder willkommen heißen.
|
|

Ariane Schröfel und Monika Zorn am Büchertisch des AGD auf dem Kirchplatz
Bild: Helmut Hermann
Großer Andrang zur Besichtigung des Eiskellers unterm Benzberg
Bild: Helmut Hermann
|
|
|
|
|
Band 12 der im August 2022 erschienenen ‚Stadtbrille” ist eine Sonderedition über die Geschichte der Grafen von Grüningen, den von ihnen initiierten Stadtausbau und den Neubau der Bartholomäuskirche. Das von Peter Fendrich verfasste Werk umfasst 288 Seiten. Es ist im Buchhandel oder beim AGD für 29,80 Euro erhältlich.
|
|

Durch die Stadtbrille 12
|
|
|
|
|
Jahresexkursion am 10. Juli 2022 ins Donautal
Die Jahresexkursion des AGD am 10. Juli 2022 führte ins Donautal. Auf dem Programm standen der oberschwäbische Wirkungskreis der Grafen von Grüningen und Landau, die sich nach dem Flecken Grüningen an der Donau benannt haben sollen: mit Stippvisiten zum Burgstall Landau, zum Schloss Hornstein in Grüningen und ins Kloster Heiligkreuztal. Nach empfehlenswertem Essen im Gasthof zum Engel in Herbertingen folgte eine Führung durch das keltische Oppidum Pyrene (Heuneburg) und buntes Treiben auf der Heuneburg mit zahlreichen Vorführungen zu keltischen Lebensumständen und Handwerkstechniken.
|
|

Schloss Hornstein in Grüningen/Donau
Bild: Peter Fendrich 2021
|
|
|
|
|
Mitgliederversammlung am 20. April 2022 im evangelischen Gemeindehaus
Zur Mitgliederversammlung am 20 April 2022 im evang. Gemeindehaus konnte der AGD-Vorsitzende Günther Mertz 31 von 125 Mitgliedern begrüßen und zwei davon nach 50-jähriger Mitgliedschaft zum Ehrenmitglied ernennen: Hilde Fendrich und Wolfgang Trautwein. Sterbefälle waren seit der letzten Mitgliederversammlung keine zu beklagen.
Die pandemiebedingten Einschränkungen für Veranstaltungen konnte der AGD mit seinem umfangreichen Internet-Auftritt abfedern, der umfangreiche Galerien mit über 9300 Bildern umfasst und sich großer Nachfrage erfreut: Pro Tag registriert der AGD rund 1250 Seitenaufrufe. Insgesamt sind es mittlerweile fast 1,8 Millionen Klicks. Dieses für Geschichtsvereine „einzigartige Angebot” zukunftssicher zu erhalten, stelle, so Mertz, allerdings die größte Herausforderung für das laufende Geschäftsjahr dar. Denn das bisher genutzte Content Management System (CMS) WordPress Classic soll zum Jahresende auslaufen. Das bedeutet, dass derzeit 931 Einzelseiten auf ein neues CMS übertragen werden müssen. Das ist ehrenamtlich nicht mehr leistbar und wird Kosten verursachen, die laut Schatzmeister Otto Beck den Etat des AGD überfordern. Bevor diese Leistung ausgeschrieben werden kann, müssten die verfügbaren Mittel deshalb durch Spenden und Fördermittel aufgestockt werden.
Ebenfalls in diesem Geschäftsjahr erscheint eine neue Ausgabe der Reihe „Durch die Stadtbrille” mit dem Themenschwerpunkt Grafen von Grüningen, der auch bei der Jahresexkursion aufgegriffen wird.
Beim Tag des Offenen Denkmals am 11. September wird der AGD mit dem Förderverein Bartholomäuskirche kooperieren und seine Anlaufstelle auf dem Kirchplatz einrichten. Hier sollen auch die vorgesehenen Führungen starten.
Vom neu erschienenen Buch 750 Jahre Bartholomäuskirche wurden 14 Exemplare verkauft.
|
|
|
|
Musikalisch begleitete Stadtführung am 23. Oktober 2021
„Licht und Schatten – Gegensätze in der Markgröninger Altstadt” war das Motto einer vom Musikverein Stadtkapelle Markgröningen mit dem AGD inszenierten Stadtführung zu fünf historischen Schauplätzen. Aufgeteilt in fünf Gruppen erfuhren die rund 100 Teilnehmer, wie Arm und Reich, Ehrbarkeit und Gemeiner Mann sich im Mittelalter auf engstem Raum begegneten und wie benachteiligte Bürger 1514 den Aufstand probten.
In stimmungsvoller Atmosphäre wurde der historische Kontext im Schlosshof von Günther Mertz, in der Bartholomäuskirche von Dr. Petra Schad, am Wettebrunnen von Mechthild Fendrich, am Spital von Monika Zorn und an der Ecke Backhausgasse/Finstere Gasse von Edith Holzer-Böhm erläutert und von Gruppen des Musikvereins musikalisch untermalt. Zum Abschluss im Schlosshof spielte das komplette Ensemble auf.
|
|
Dr. Petra Schad in der Bartholomäuskirche, Horn-Trio in der Finsteren Gasse und Günther Mertz als Graf von Grüningen im Schlosshof bei der Stadtführung „Licht und Schatten” am 23.10.2021 mit dem Musikverein
Bilder: Helmut Herman
|
| |
|
Archäoprospektion auf dem Schlüsselberg und auf der Sankt-Johännser-Allmende
Nach zahlreichen Rodungs- und Pflegeaktionen erfolgte vom 21. bis 23. September 2021 die geophysikalische Suche nach Fundamenten von Schlüsselburg und Sankt-Johann-Kapelle. Die vom AGD beauftragte Firma Terrana Geophysik aus Mössingen setzte je nach Geländebeschaffenheit Georadar oder Geoelektrik ein [PDF]. Geschäftsführer Dr. Arno Patzelt stellte nach ersten Stichproben Funde in Aussicht. Die Datenauswertung werde allerdings noch einige Zeit in Anspruch nehmen. Weitere Bilder finden sich in der Galerie Kulturlandschaft (St. Johännser Allmende bis Schlüsselberg). Bleibt zu hoffen, dass die Stadtverwaltung die mühsam von Schnee- und Brombeeren befreiten Untersuchungsflächen künftig offen hält.
|
|
Mit Georadar und Geoelektrik am 21. September 2021 auf dem Schlüsselberg
Bilder: Peter Fendrich 2021
|
| |
 |
| |
|
|
|
Historisch-geographische Stadtführung mit Peter Fendrich und Kostümführung zum Aufstand des Armen Konrad mit Norbert Kretschmer und Roswitha Feil am Tag des offenen Denkmals am 12. September 2021
Bilder: Ariane Schröfel u. Kurt Hahn-Feil
|
| |
|
Mitgliederversammlung am 1. September 2021 im evang. Gemeindehaus
25 von 121 Mitgliedern nahmen an der abgespeckten Mitgliederversammlung ohne Vergabe des Sanierungspreises und ohne den traditionellen Vortrag am 1. September 2021 im ev. Gemeindehaus teil – pandemiebedingt die erste Mitgliederversammlung seit rund zweieinhalb Jahren. Nach dem Höhenflug im Jubiläumsjahr 2019, in dem der AGD mit der Aufführung eines selbst inszenierten Theaterstücks, mit einer Ausstellung zur Altstadtsanierung, einem Musikabend im Spitalkeller und der neuen Schäferlaufgruppe sehr präsent war, mussten ab März 2020 die öffentlichen Aktivitäten weitgehend heruntergefahren und die im ersten Quartal vorgesehenen Mitgliederversammlungen abgesagt werden.
Nun konnten die Geschäftsberichte für 2019 und 2020 vorgelegt und die satzungsgemäßen Regularien zügig abgearbeitet werden. Vorstand und Fachbeirat wurden für die Geschäftsjahre 2019 und 2020 einstimmig entlastet. Bei den Wahlen der Mitglieder von Vorstand, Fachbeirat und Rechnungsprüfung wurden alle Kandidaten einstimmig für zwei Jahre gewählt. Dabei tauschten Helmut Hermann und Peter Fendrich die Funktion als Schriftführer bzw. Fachbeirat, Norbert Mönig folgt als Rechnungsprüfer Gerhard Schmid, der sich aus gesundheitlichen Gründen nicht mehr zur Wahl stellte. Darüber hinaus gab es keine Änderungen im Personaltableau.
Für 50jährige Mitgliedschaft im AGD wurde die Ortsgruppe Markgröningen des Schwäbischen Albvereins geehrt, für 40jährige Mitgliedschaft Wilhelm Wild. [Protokoll]

AGD-Vorstand vor Eröffnung der Versammlung: Günther Mertz (1. Vorsitzender), Ariane Schröfel (2. Vorsitzende), Helmut Hermann (Schriftführer) und Otto Beck (Schatzmeister)
Bild: Margret David
|
|
|
|
|
AGD-Jahresprogramm 2025
AGD-Jahresprogramm 2024
AGD-Jahresprogramm 2023
AGD-Jahresprogramm 2022
AGD-Jahresprogramm 2021
AGD-Jahresprogramm 2020
AGD-Jahresprogramm 2019
AGD-Jahresprogramm 2018
AGD-Jahresprogramm 2017
AGD-Jahresprogramm 2016 |
Tag des Offenen Denkmals 2025
Tag des Offenen Denkmals 2024
Tag des Offenen Denkmals 2023
Tag des Offenen Denkmals 2022
Tag des Offenen Denkmals 2021
n
Tag des Offenen Denkmals 2019
Tag des Offenen Denkmals 2018
Tag des Offenen Denkmals 2017
Tag des Offenen Denkmals 2016 |
|
| |
| |
|
Vortrag von Prof. Dr. Gudrun Krämer am 8. Mai 2026
Religion und Politik sind in Palästina/Israel so eng miteinander verknüpft wie in wenigen Konflikten der jüngeren Geschichte und Gegenwart. Auf ihrem komplizierten Zusammenspiel lag der Schwerpunkt des beeindruckenden Vortrags der Islamwissenschaftlerin Prof. Dr. Gudrun Krämer am 8. Mai 2026 in der Halle des Helene-Lange-Gymnasiums. Im Nahostkonflikt ist fast alles umstritten: Namen, Identitäten und natürlich politische Ansprüche, die unter Berufung auf Gott und die Geschichte geltend gemacht werden. Während ein primär religiös verstandenes Selbstverständnis noch hinreichend Raum für eine Koexistenz von Juden, Christen und Muslimen gelassen habe, seien im modernen Selbstverständnis als Volk und Nation mit dem Recht auf einen eigenen souveränen Staat von vornherein Konflikte angelegt. Dies gelte insbesondere dann, wenn die eigenen Ansprüche exklusiv formuliert werden und dem Gegenüber bereits die Anerkennung als Volk verweigert werde. Dem zahlreichen Publikum gab Krämer mit auf den Weg, sich nicht von der deutschen „Staatsräson” davon abhalten zu lassen, die aktuelle Politik der israelischen Regierung zu kritisieren.

Prof. Dr. Gudrun Krämer am 8. Mai 2026 beim Vortrag für den AGD
Bild: Ariane Schröfel
|
| |
|
Führung am 16. April 2026 mit Dr. Jörg Bofinger vom LAD
Im Dialog mit 13 AGD-Mitgliedern und dem Sachsenheimer Bürgermeister Holger Albrich stellte der erfreulich unprätentiöse Landeskonservator Dr. Jörg Bofinger vom Landesamt für Denkmalpflege (LAD) am 16. April 2026 Ergebnisse der archäologischen Grabungen beim Eichwaldgelände vor. Südlich von Großsachsenheim brachte die archäologische Begleitung der Trasse der Neckar-Enztal-Leitung (NET) 2022 eine große linearbandkeramische Siedlung mit zugehörigem Gräberfeld zu Tage. Im Arbeitsstreifen für die Gasleitung wurden zunächst 24 und südlich davon bis heute viele weitere Grablegen erfasst. Sie stammen aus der Zeit um 5500 bis 5000 vor Christi.

Dr. Jörg Bofinger (rechts) stellte einen jungsteinzeitlichen Friedhof vor. Im Vordergrund ein Kinderskelett in typischer Hockerstellung
Bild: Peter Fendrich
|
| |
|
Führung durch Rudolf Dürr am 9. Januar 2026
Rudolf Dürr, Mitglied des AGD-Beirats und Stadtführer in Stuttgart, bot am 9. Januar 2026 einen detailreichen Streifzug zur Geschichte und Geographie des Stuttgarter Westens an: von der Gründerzeit über die Auswirkungen des Zweiten Weltkriegs und den Wiederaufbau bis hin zu Entwicklungen in jüngster Zeit. Mit im Fokus war der Stilmix des Historismus, insbesondere die neogotische Johanneskirche am Feuersee und die neoromanische Sankt-Elisabeth-Kirche am Bismarckplatz, an dem auch stadtklimatische Herausforderungen thematisiert wurden.

Ausgangspunkt war die neogotische Johanneskirche am Feuersee
Bild: Silke Kutterer
|
|
|
Rund 40 Gäste ließen sich am 12. November 2025 beim „Treffpunkt Geschichte“ im Kelterstüble von den Erzählungen Alexius Siebs beeindrucken. Sieb, der im Juli seinen 100. Geburtstag feiern konnte, schilderte, wie er von Mai bis Juli 1945 den 450 km langen Weg von Linz nach Markgröningen meisterte, wo seine vertriebene Familie untergekommen war.
|
|

Alexius Sieb am 12. November 2025 im Kelterstüble
Bild: Rudolf Dürr
|
|
Ausführlich berichtete er auch über seine 34-jährige Mitgliedschaft im Gemeinderat und beschrieb, wie dieser früher von gewissen Lokalgrößen dominiert wurde. Weitere Themen waren die Entnazifizierung auf lokaler Ebene, der erste Schäferlauf nach dem 2. Weltkrieg im Jahr 1947 sowie die „Sünden“ im Denkmalschutz in den 60er und 70er Jahren.
|
| |
|
Schautafeln des Bürgervereins am Tag des Offenen Denkmals
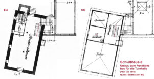
Am Tag des offenen Denkmals präsentierte der Bürgerverein im Wimpelinhof Schautafeln zum Schießhäusle, um die Öffentlichkeit über die Verhandlungen mit der Stadt und mit dem Landesamt für Denkmalpflege zu informieren. Denn der Umbau des Schießhäusles zum Haus der Vereine steht neuerdings wieder in Frage, weil bislang kein adäquater Veranstaltungsraum vorgesehen werden kann. Der Bürgerverein zeigte Entwürfe des Architekturbüros und des Vereinskonsortiums zum Vergleich und lieferte einen Beleg, dass das Schießhäusle bis zur Fertigstellung der Turnhalle 1912 nicht durch erhaltenswerte Trennwände untergliedert war. Es diente als Turnraum für die Lateinschule und den Turnverein und ab 1912 als Funktionsgebäude für die Turnhalle mit Toiletten und Geräteraum im EG und Umkleideräumen im OG.

Plan von 1910 für den Umbau des Schießhäusles zum Funktionsbau für die neue Turnhalle
Quelle: Stadtbauamt
|
|
|
Zum Tod von Veit Müller
Im Alter von 83 Jahren verstarb am 27. Juli 2025 unser engagiertes Mitglied Veit Müller. Als Gestalter von Ausstellungen, Urkunden oder Briefmarken leistete der einst bei Reader’s Digest beschäftigte Graphiker dem AGD mehr als 30 Jahre lang wertvolle Dienste. Insbesondere die ehemaligen Vorsitzenden Hilde Fendrich und Walter Ebner wissen das sehr zu schätzen. Außerdem gestaltete er drei Editionen des Vereins Dichterhäusle. Die vierte konnte er nicht mehr fertigstellen.
|
|

Veit Müller
∗ 13.2.1942, † 27.7.2025
Quelle: Elfriede Sülzle-Müller
|
| |
|
Führung zur Blütezeit der Stadt am 20. Juli 2025
Was die Steuerlisten von 1448, 1471 und 1545 dokumentieren, spiegelt sich in der Bautätigkeit der damals reichsten Bürgerschaft Württembergs wider: Während der spätmittelalterlichen Blütezeit der Stadt entstanden in Grüningen viele herausragende Bauwerke. Peter Fendrich stellte im Zuge eines ausführlichen Stadtrundgangs vor, was davon erhalten blieb, und ging dabei der Frage nach, welche Faktoren und Personen die hohen Investitionen möglich machten. Die 20 Teilnehmer der im Nu ausgebuchten Führung zeigten sich trotz Überlänge sehr interessiert und überforderten den Referenten anschließend mit Freibierangeboten auf dem Kirchplatzfest.
|
|
|
Jahresexkursion am 28. Juni 2025 nach Bad Schussenried
Die Ausstellung „UFFRUR! Utopie und Widerstand im Bauernkrieg 1524/25″ in Bad Schussenried war am 28. Juni Ziel der AGD-Jahresexkursion. Didaktisch sehr gut aufbereitet, übersichtlich und informativ zeigt die Ausstellung des Landesmuseums Stuttgart die historischen Ereignisse rund um die Bauernaufstände im Südwesten. Sie schildert, wie sich die Bauern gegen die Ausbeutung durch ihre Herren erhoben hatten und Freiheit, Gerechtigkeit und politische Teilhabe forderten. Beeindruckend und anregend war die oft sehr emotionale Übermittlung historischer Ereignisse und persönlicher Erfahrungen durch KI-Figuren wie Götz von Berlichingen, Jörg Truchsess von Waldburg, verschiedene Ritter und gewöhnliche Bäuerinnen und Bauern. Dem Ausstellungsbesuch und der Führung schloss sich eine ebenso launige wie informative Stadtführung in Schussenried und in der Klosteranlage an. Die prachtvollen Bauten des Klosters Schussenried verdeutlichen, welche Macht die geistliche Herrschaft im ausgehenden Mittelalter gehabt haben muss und wie hart die Untertanen für den Bau und den Unterhalt des Klosters schuften mussten.
|
|

AGD-Exkursion am 28. Juni 2025 zur Ausstellung „Uffrur!” in Schussenried
Bild: Uli Schmid
|
| |
|
|
|
Vortrag von Sophie Froehlich
Im Anschluss an die Mitgliederversammlung des AGD verdiente sich Kreisarchivarin Sophie Froehlich großen Applaus für ihren kompetenten Vortrag „Aufruhr! – Markgröningen und Württemberg im Bauernkrieg 1525″. Sie schilderte den Zug der Rebellenhaufen von der „Bluttat zu Weinsberg” bis zur Schlacht bei Böblingen und erläuterte, wie die Stadt Gröningen dank diplomatischer Kontakte zu Rebellenführer Matern Feuerbacher im Gegensatz zu anderen Städten, Klöstern und Burgen ungeschoren blieb und wie die Gröninger Abgeordneten dazu beitrugen, dass der um Mäßigung bemühte und vor der Schlacht bei Böblingen deshalb abgesetzte Feuerbacher vor Gericht freigesprochen wurde.
|
|

Kreisarchivarin Sophie Froehlich bei ihrem Vortrag zum Bauernkrieg am 26. März 2025. Ihr Manuskript wird demnächst im Artikel-Archiv abrufbar sein.
Bild: Peter Fendrich 2025
|
| |
|
AGD-Mitglieder bei Pflegeaktion am 1. März 2025
Auf dem für die Georadaruntersuchung freigeschnittenen Dreieck an der Vorderen Steige und um die Bammes-Gedenkbank war eine Nachpflege erforderlich. AGD-Mitglieder gingen am 1. März 2025 mit Freischneidern und Gabeln zu Werke und fuhren das Schnittgut, vorwiegend Brombeeren, zum Häckselplatz.

Rudolf Dürr, David Zechmeister und Jens Haug an der Vorderen Steige
Bild: Peter Fendrich
|
| |
|
Zum Tod von Heinz Oechsner
Im hohen Alter von 93 Jahren verstarb am 23. Dezember 2024 unser Gründungsmitglied Heinz Oechsner (∗7.10.1931).
Der ehemalige Lehrer zählte über fünf Jahrzehnte zum gestaltenden und forschenden Kern des AGD: Er war bis 2019 Mitglied des Fachbeirats, organisierte zahlreiche Exkursionen und machte sich einen Namen als Autor zur Geschichte des Heilig-Geist-Spitals und seiner Kirche. 2019 wurde er für 50-jährige AGD-Mitgliedschaft geehrt.
|
|

Heinz Oechsner bei seiner Ehrung für 50 Jahre aktive AGD-Mitgliedschaft
Bild: Peter Fendrich 2019
|
|
| |
|

Experte Rainer Christmann 2017 bei einer Veranstaltung zur Bahnreaktivierung in Ludwigsburg
Bild: Peter Fendrich
|
|
Zum Tod von Rainer Christmann
Völlig überraschend verstarb am 17. Oktober 2024 unser langjähriges Mitglied Rainer Christmann (∗1948). Der vielseitig engagierte Lokalpatriot und international im Bahnbau aktive Ingenieur hat sich unermüdlich für die Reaktivierung der Bahnstrecke Ludwigsburg-Markgröningen eingesetzt und die AGD-Ausstellung zum 100-jährigen Bahnjubiläum maßgeblich mitgestaltet. Zudem steuerte der ehemalige SPD-Gemeinderat viele Impulse zur Aufarbeitung der NS-Zeit bei.
|
|
| |
|

AGD-Gruppe „Armer Konrad” 2024 auf dem Marktplatz
Bild: Helmut Hermann

AGD-Gruppe „Armer Konrad” am 21. Juli 2024 in Wildberg
Quelle: Roswitha Feil
Außerörtliche Premiere der AGD-Gruppe am 21. Juli 2024
Zum 300-jährigen Jubiläum des Wildberger Schäferlaufs am 21. Juli 2024 schlossen sich einige Mitglieder der AGD-Gruppe „Armer Konrad“ der großen Markgröninger Abordnung an und beteiligten sich erstmals an einem außerörtlichen Festzug.
1723 hatte Herzog Eberhard Ludwig neben der Gröninger Schäferlade Nebenladen in Wildberg, Urach und Heidenheim einrichten lassen, damit die Schäfer im Osten, Süden und Westen nicht mehr so weite Distanzen zum alljährlichen Zunfttreffen in Gröningen zurücklegen mussten. Heutzutage findet der Schäferlauf in Wildberg alle zwei Jahre statt, weshalb das 2023 anstehende Jubiläum 2024 nachgeholt wurde.
|
| |
|

Günther Mertz eröffnet den Treffpunkt Geschichte zum 2. Weltkrieg
Bild: Peter Fendrich 2024
Zeitzeugenberichte über Luftschutzeinrichtungen im Kontext mit lokalen Kriegsereignissen am 24. April 2024
In Anbetracht zunehmender Luftangriffe auf Stuttgart und der näher rückenden „Hauptkampflinie” wuchs in Markgröningen 1944/45 die Angst vor Bomben- und Granateinschlägen. Außer den bereits zu Luftschutzräumen umgebauten Kellern im Schloss, im Fruchtkasten, im Rathaus, im Haus Näher, im Bahnhofsgebäude und unterm Benzberg (Eiskeller) wurden im Umfeld der Stadt sechs Luftschutzstollen teils in Privatinitiative ausgeschachtet: an der Vaihinger Steige, am Tammer Weg, im Kuckuck, am Taler Weg, in der Weißhälde und am Mühlberg. Helmut Hermann hatte zahlreiche Zeitzeugen ausfindig gemacht, die ihre Kindheitserinnerungen für den Treffpunkt Geschichte am 24. April im evang. Gemeindehaus einbrachten. Die Stoffsammlung rundeten das vom AGD publizierte Kriegstagebuch von Irma Christmann [PDF] und die Bauaufnahme zum Eiskeller [PDF] ab.
Im Rahmen einer zweistündigen Lichtbildschau über die verschiedenen Luftschutzeinrichtungen und die letzten Kriegstage bauten die sich abwechselnden Referenten Peter Fendrich, Helmut Hermann, Günther Mertz, Gerhard Pflüger und David Zechmeister Zitate der Zeitzeugen ein oder ermunterten sie zu eigenen Redebeiträgen.
75 Personen konnten an der ausgebuchten Veranstaltung teilnehmen. Wer mit seiner Anmeldung zu spät kam, kann die Folien der Lichtbildschau und die Kriegsbilanz der Stadt als PDF herunterladen.

Der Treffpunkt Geschichte zum 2. Weltkrieg war überbucht. 75 Personen konnten an der Veranstaltung im ev. Gemeindehaus teilnehmen. Im Vordergrund einige der von Helmut Hermann konsultierten Zeitzeugen: Gerda Schneider, Inge Alt, Hans Frey, Gerhard Pflüger und Eugen Wurst
Bild: Peter Fendrich 2024
|
| |
|
AGD-Mitglieder bei der Markungsputzete am 9. März 2024
Bei der Markungsputzete am 9. März zählten die Initiatoren von NABU und BUND über 70 Mitwirkende, die Tonnen von Müll einsammelten und sich anschließend bei optimalem Wetter und guter Stimmung auf dem Parkplatz am Tammer See zum Vesper trafen. Mitgewirkt haben Mitglieder des AGD, des Angelsportvereins, des Bürgervereins, des BUND, des DRK, der Hundefreunde, der Jagdgenossenschaft, der Landfrauen und des Landwirtschaftlichen Ortsvereins, des Naturschutzbunds, des OWG und des Schwäbischen Albvereins.
Die Schattenseite: Das Unverständnis über die Wegwerfmentalität mancher Zeitgenossen wurde noch getoppt durch die mutwillige Zerstörung des Abfallbehälters, den die Stadtverwaltung auf Betreiben des AGD beim Tisch auf der Schlüsselburg aufgestellt hat.

Das fünfte von sechs Teams war im Glemstal, am Schlüsselberg, im Sankt Johännser, am Sonnenberg und auf der Bucke im Einsatz
Bild: Silke Kutterer
|
| |
|
Treffpunkt Geschichte mit Roland Essig
Roland Essig, der maßgeblich an der Erschließung des Bunkers im Hohberg mitgewirkt hatte, bot AGD-Mitgliedern am 19. November 2023 eine exklusive Führung durch die weitgehend erhaltene Bunkeranlage 388 der Neckar-Enz-Stellung an. Weitere Bilder
–

Unterstand G12a in der großen Bunkeranlage 388 im Hohberg
Bild: Helmut Hermann 2023
–
|
|

Otto Beck, Maria Justen und Günther Mertz am AGD-Stand beim Tag des Weinbergs des OWG am 24. September 2023
Bild: Peter Fendrich
|
|
Festzugteilnahme und Schäferlaufführungen
Die vom AGD traditionell am Freitag angebotenen Schäferlaufführungen waren wieder gut besucht. Am Samstag und Sonntag wirkte die AGD-Gruppe „Armer Konrad” 2023 zum dritten Mal mit der Bundschuhfahne im Festzug mit. Die Teilnehmer hatten viel Spaß bei ihren Rufen „Nieder mit der Ehrbarkeit!”

AGD-Gruppe im Festzug des Schäferlaufs 2023
Bild: Helmut Hermann
–
|
|
Drei-Täler-Radtour des AGD am 9. Juli 2023
In den Tälern von Leudelsbach, Enz und Glems finden sich zahlreiche Merkmale, anhand derer sich Geologie und Geomorphologie erschließen und menschliche Eingriffe in die Landschaft nachvollziehen lassen. Peter Fendrich erläuterte den Teilnehmern, die sich nicht von den vorhergesagten 38 Grad abschrecken ließen, Spuren historischer Wirtschaftsweisen wie Wein- und Obstbau, Schafhaltung, Wiesenbewässerung, Flößerei, Teichwirtschaft oder die Nutzung der Wasserkraft und stellte abgegangene Siedlungsstandorte vor.
Am Badplatz, in den Enzwiesen und auf dem Marktplatz konnte man den hitzebedingten Durst löschen.

Siedlungsstandort bei der Hinterstaig auf der Drei-Täler-Radtour
Bild: Christian Elser
|
| |
|
Jahresexkursion des AGD am 13. Mai 2023
Bei der Jahresexkursion 2023 stand eine Stadtführung in Meßkirch und ein Rundgang durch den Campus Galli bei Rohrdorf auf dem Programm. Die Klosterbaustelle macht das Mittelalter hautnah erlebbar: Seit 2013 rekonstruieren hier Archäologen, Handwerker und zahlreiche Ehrenamtliche mit den Mitteln des 9. Jahrhunderts ein Kloster auf Grundlage der im Kloster Reichenau angefertigten und bis heute erhaltenen Blaupause für die Anlage des Klosters in Sankt Gallen.
|
|

Campus Galli und Maßstab mit einer Elle = vier Hände à vier Finger
Bild: Peter Fendrich 2023

Keimzelle eines karolingischen Klosters: Holzkirche mit Glockenturm
Bild: Peter Fendrich 2023

Scheuer und Brunnen im Campus Galli
Bild: Peter Fendrich 2023

Exkursionsteilnehmer im Garten des Campus Galli
Bild: Peter Fendrich 2023
|
| |
|

„Quellenstudium” am AGD-Stammtisch mit alten Comics, die Silke Kutterer aus einer Haushaltsauflösung mitbrachte.
Der auch für Nichtmitglieder offene Stammtisch trifft sich freitags ab etwa 19 Uhr im „Kaffee Klecks”.
Bild: Silke Kutterer
–

Roswitha Feil und Norbert Kretschmer führten am 23. April 2023 vom Tammer See zur Leudelsbach-Mündung. Dabei wurden historische und biologische Aspekte angesprochen.
Bild: Kurt Hahn-Feil
|
| |
|
Nachruf auf Gerhard Schmid
Am 31. Dezember 2022 verstarb nach langer Krankheit unser aktives Mitglied Gerhard E. Schmid im Alter von erst 66 Jahren. Er trat dem AGD vor fast 35 Jahren bei, wirkte im Arbeitskreis Museum mit und bot in Unterriexingen Schlossführungen an, die stets sehr gut besucht waren. Von 2008 bis 2020 unterstützte er den AGD zudem als Kassenprüfer.
Als Architekt machte er sich einen Namen im Bereich der Sanierung denkmalgeschützter Objekte. Die von ihm betreuten Sanierungen von Ratstüble und Wimpelinhof wurden von Stadt und AGD mit dem Sanierungspreis ausgezeichnet. Für die liebevolle Sanierung seines eigenen Hauses Ostergasse 1 erhielt er 1997 den Denkmalpreis des Schwäbischen Heimatbundes.
Auch als Stadtrat und Mitglied des Kirchengemeinderates setzte er sich unermüdlich für die Belange der Denkmalpflege ein.
|
|

Gerhard Schmid 2017 bei einer Schlossführung in Unterriexingen
Bild: Peter Fendrich
_
Mit Gerhard Schmid verliert der AGD einen engagierten Mitstreiter, Förderer, wichtigen Ratgeber und guten Freund. Wir werden ihm ein ehrendes Andenken bewahren.
|
|
|
| |
|
|
|
|
|

Die am 13. November 2022 angebotene Führung zur Schlüsselburg und zur Sankt-Johann-Kapelle war schnell ausgebucht. Peter Fendrich erläuterte die Befunde der Archäoprospektion und interpretierte sie im Kontext mit Spuren an der Oberfläche und den historischen Quellen.
Bild: Helmut Hermann
|
|
|
| |
|
|
|
|
|

AGD-Gruppe im Festzug des Schäferlaufs 2022
Bild: Helmut Hermann
|
|
|
| |
|
|
|
Nachruf auf Hermann Mayer
Am 30. Mai 2022 verstarb in Ludwigsburg mit 87 Jahren Hermann Mayer. Er war seit 1994 AGD-Mitglied. In seinem Bericht „Eine Kindheit in der Kriegs- und Nachkriegszeit“ (PDF) schilderte er eindrucksvoll seine Kindheit in der Ostergasse, wo sein Vater ein Ladengeschäft betrieb und wo er mit seiner jüngeren Schwester Elfriede im regimekritischen Elternhaus aufwuchs.
Bereits mit neun Jahren ging er zum CVJM, spielte lange Jahre im Posaunenchor und arbeitete als gelernter Kaufmann in den 1950er Jahren in der „Seide“.
|
|

Bild: Veit Müller
Mit ihm verliert der AGD einen vielseitig engagierten, wertgeschätzten Freund. Unser Mitgefühl gilt seinen Angehörigen.
|
|
|
|
|
|
|
|
|
Exkursion am 5. September 2021
Wüstungen im Außfeld und dessen Neubesiedlung im 18. Jahrhundert waren Schwerpunkte der historisch-geographischen Rad-Exkursion, die Peter Fendrich am 5. September angeboten hat. Stationen waren Schlüsselburg, St. Johann, Talhausen, Kühlenbronn, Aichholzhof, Dauseck, Pulverdingen, Hochgericht, Böhringen, Hardt-Schönbühlhof, Cannstatt, Obere Mühle, Rennwiesen und Eichholz.
|
|

Außfeldkarte von 1752 mit Zelgen und Besitzverhältnissen
Bild: Johann Georg Raisch,
Quelle: Wikimedia
|
|
|
| |
|
|
|
|
|
|
|
Günther Mertz überreicht Christa Hipp-Seeliger von der Ortsgruppe des Schwäbischen Albvereins die Ehrenurkunde für 50-jährige AGD-Mitgliedschaft. Für 40 Jahre wurde Wilhelm Wild geehrt.
Bild: Ariane Schröfel 2021
|
|
|
| |
|
|
|
Nachruf auf Dr. Heinz Griesinger
Am 6. Juli 2021 verstarb Prof. Dr. Heinz Griesinger im Alter von 92 Jahren. Der AGD verliert mit ihm einen Mann der ersten Stunde: Er gehörte zu den Mitgliedern, die 1969 den „Arbeitskreis für Geschichtsforschung, Heimat- und Denkmalpflege” aus der Taufe gehoben haben. Bis zuletzt unterstützte er den AGD, ließ keine Mitgliederversammlung aus und war in vielen Fragen ein wertvoller Zeitzeuge.
|
|

Prof Dr. Heinz Griesinger, 2019 für 50-jährige Mitgliedschaft geehrt, ist am 6. Juli 2021 verstorben
Bild: Peter Fendrich 2019
|
|
|
|
|
|
|
|
|
|
Kostümierte Stadtführungen am 27. Juni und 3. Juli 2021
1514 rief der hiesige Stadtpfarrer Reinhard Gaißer als „erster Sozialrevolutionär auf einer württembergischen Kanzel“
(H. Römer) den Gemeinen Mann in Gröningen und andernorts zum Aufstand gegen die ungerechte Steuerpolitik Herzog
|
|
|
|
Ulrichs und die frühkapitalistisch agierende Ehrbarkeit auf. Wilhelm Gaißer, sein Neffe und Mitverschwörer, ist nach Jahren im Exil zurück in Gröningen. Norbert Kretschmer als Wilhelm und Roswitha Feil als seine Jugendfreundin Rosi nahmen das interessierte Publikum im Rahmen einer kostümierten Stadtführung am 27. Juni mit zu den „Stätten des Uffruhrs“. Am 3. Juli wurde die Führung wiederholt.
|
|

Norbert Kretschmer und Roswitha Feil als Wilhelm Gaißer und Rosi
Bild: Kurt Hahn-Feil
–
|
|
|
|
_
|
|
|
|
Online-Vortrag von Ludwig Krinn junior am 31. März 2021
Im Rahmen des ersten Online-Vortrags des AGD setzte sich Ludwig Krinn junior am 31. März 2021 in „sehr persönlicher Betrachtungsweise aus der Sicht des kritischen Sohnes” mit der NS-Karriere seines Vaters und deren Nachwehen auseinander.
|
|
|
|
Nach der von NSDAP-Orts-gruppenleiter Wilhelm Schmückle 1933 betriebenen Suspendierung des beliebten Bürgermeisters Heinrich Zillhardt trat Parteigenosse Ludwig Krinn 1934 dessen Nachfolge an. Er bekleidete dieses Amt in Markgröningen, bis Schmückle gegen Ende 1944 dafür sorgte, dass Krinn an die Front versetzt wurde.
Leider ist es einigen Interessenten nicht gelungen, sich einzuloggen. Hier steht der Vortrag nun als Audio-Mitschnitt (mp3) und als mp4 bereit.
|
|

Ludwig Krinn um 1938
Quelle: Nachlass Krinn
|
|
|
| |
|
|
|
|
|
Nachruf auf Werner Schmidt
Am 21. August 2020 ist Werner Schmidt im Alter von 88 Jahren verstorben. Er war jahrzehntelang als ehrenamtlicher Beauftragter der Archäologischen Denkmalpflege für den Bezirk um Markgröningen zuständig und hat hier viele kleinere Grabungen selbst vorgenommen und dokumentiert. Seitens des AGD standen ihm insbesondere Hilde Fendrich, Hermann Beck und Roswitha Feil zur Seite.
|
|

Werner Schmidt bei einer hiesigen Grabung
Quelle: Roswitha Feil
|
|
|
|
Fachbeirat Wolfgang Löhlein hatte ihn auf beruflicher Ebene schätzen gelernt. Schmidts großes Engagement und seine Kritik an der sukzessive verminderten Wertschätzung von Bodendenkmalen bleiben unvergessen. Der AGD trauert um einen wertvollen Partner.
|
|
|
| |
|
|
|
Nachruf auf Prof. Walter Kern
Mit Prof. Dr. Walter Kern, der am 14. Juli 2020 im Alter von 83 Jahren verstarb, verlor der AGD einen vielseitig engagierten Mitstreiter, Förderer und Freund. Walter Kern trat 2002 in den AGD ein und setzte von 2006 bis 2015 Maßstäbe im Amt des Schriftführers. Auch als Mitglied des Fachbeirates genoss er hohe Wertschätzung. Nicht nur wegen seiner stets konstruktiven Diskussionsbeiträge, sondern insbesondere wegen seiner feinen
|
|

Prof. Dr. Walter Kern
Quelle: Kath. Kirchengemeinde
|
|
|
|
und humorvollen Art, die die Atmosphäre im Beirat wesentlich prägte. Sehr stark engagierte er sich bei der Neufassung der AGD-Satzung. Im Rahmen der Mitgliederversammlung 2019 verabschiedete sich Walter Kern zum allgemeinen Bedauern auch aus dem Fachbeirat.
Der AGD wird ihm ein ehrendes Andenken bewahren. Unser besonderes Mitgefühl gilt seinen Angehörigen.
–
|
|
|
|
|
|
|
| |
|
Nachpflegeaktionen im Juni und Juli 2021 für die Archäoprospektion
Am 18. Juni und am 24. Juli 2021 präparierten Erwin Elser, Fritz und Peter Fendrich, Jens Haug, Helmut Hermann und David Zechmeister die für die Archäoprospektion vorgesehenen Flächen auf dem Schlüsselberg und auf der Sankt-Johännser-Allmende. Der letzte Feinschliff soll am 31. Juli erfolgen. Dann kann das mittlerweile mit der Untersuchung beauftragte Unternehmen Terrana Geophysik loslegen.
|
|
 |
|
 |
| |
|
Links: Helmut Hermann, rechts: Burgstall auf dem Schlüsselberg nach der Pflegeaktion am 24. Juli 2021
Bilder: Peter Fendrich
–
–
Freischneideaktionen im Januar und Februar 2021 für die Archäoprospektion
Um das Kulturdenkmal des Burgstalls offen zu halten und zur Vorbereitung der Georadar-Untersuchung auf dem Schlüsselberg und auf dem potenziellen Standort der Sankt-Johann-Kapelle an der Vorderen Steige führten BUND und AGD am 9., 16. und 23. Januar weitere Freischneideaktionen durch. Die Abfuhr von Schnittgut fand am 6. und 13. Februar statt. Ohne die Traktorgespanne von Martin Weber und Matthias Reutter wären noch etliche Termine nötig geworden. Herzlichen Dank für die großartige Unterstützung!

|
| |
 |
|
 |
| |
|
Freischneideaktionen am 9. und 16. Januar und Schnittgutabfuhr am 13. Februar 2021 für die Georadar-Untersuchung auf dem Schlüsselberg und am potenziellen Standort der Sankt-Johann-Kapelle an der Vorderen Steige
Bilder: Peter Fendrich, Silke Kutterer und Mechthild Fendrich
|
|
|
|
|
|
 |
| |
|
Spurensuche unterhalb der Hinterstaig: Hier war ein Teil von Talhausen
Bild: Helmut Hermann 2020
Erste Lockerungsübung des AGD am 7. Juni 2020
Nichts Genaues weiß man nicht von der „Burg Schlüsselberg” und der benachbarten Sankt-Johann-Kapelle. Die Quellenlage ist dürftig und der Burgstall wurde um 1960 ohne Dokumentation der Überreste als Schuttplatz missbraucht. Der AGD plant deshalb, eine geomagnetische Prospektion auf dem verschütteten Burgstall zu beauftragen.
Vorab bot Peter Fendrich eine geographische Führung rund um den Schlüsselberg an, um anhand alter Karten und den Lagerbüchern ab 1424 auf historische Strukturen hinzuweisen und die daraus resultierenden Fragestellungen zu erläutern. Mit im Fokus waren die Siedlungsstruktur der einst selbstständigen Gemeinde Talhausen, der Hohlwegfächer zwischen Schlüssel- und Sonnenberg und die Sankt-Johanns-Allmende.
Am 27. Juni folgte eine historisch-geographische Exkursion durchs obere Glemstal: von Aichholz nach Cannstatt und entlang der ehemaligen Rainstraße zurück in die Stadt.
Einige der vorgestellten Forschungsergebnisse sind in der Galerie Kulturlandschaft dokumentiert.
|
|
|
|
Die im Mai 2020 erschienene Jubiläumsausgabe der AGD-Reihe „Durch die Stadtbrille” enthält einen vielseitigen Themen-Mix. Schwerpunkte sind ein Rückblick auf das Jubiläumsjahr und die fünfzigjährige Vereinsgeschichte sowie eine Bilanz zum
|
|

Durch die Stadtbrille, Band 11
ISBN: 978-3-00-064177-0
|
|
Denkmalschutz. Das 194 Seiten umfassende Werk ist beim AGD für 19,80 Euro erhältlich.

|
|
Substanzverlust in der Markgröninger Altstadt von 1800 bis 2019
Graphik: Peter Fendrich, Quellen: StA LB, Staatl. Liegenschaftsamt
|
| |
|
|
|
| |
|
|
| |
|
Stationen der Stadtführung zum Tag des offenen Denkmals 2020 am Hafenmarkt und am Oberen Tor
Bilder: Leila Fendrich
Tag des offenen Denkmals 2020
Großes digitales Angebot mit Führungen in Markgröningen und Unterriexingen
Der Tag des Offenen Denkmals ging am 13. September 2020 pandemie-bedingt weitwiegend digital über die Bühne. Mit seinem umfangreichen Online-Portal war der AGD dafür bestens aufgestellt und registrierte denn auch vermehrte Seitenaufrufe. Zudem bot der AGD eine Führung im Freien an: Peter Fendrich erläuterte die Entwicklung vom alemannischen Dorf bis zur befestigten Stadt, deren planvolle Erweiterung im 13. Jahrhundert und ihre Aufwertung im 15. Jahrhundert.
Dass im Oberen Tor eine Kunstausstellung stattfand, sorgte für Unmutsäußerungen, weil zuvor dem AGD die hier vorgesehene Präsentation seiner Denkmalausstellung [PDF] untersagt worden war. Von sich reden machte außerdem das Bürgerforum Unterriexingen, das an seinem üblichen Führungsangebot festhielt und darüber hinaus einen sehenswerten Dokumentarfilm über das KZ-Außenlager Unterriexingen auf Youtube präsentierte. Die Stadtverwaltung bot einen Online-Stadtrundgang an.
–
–
|
|

Pflegeaktion auf dem Schlüsselberg. Von links: Arndt Zwicker, Rudolf Dürr, Otto Beck und Christian Elser. Außerdem waren vom AGD noch Erwin Elser, Hilde Fendrich, Mechthild Fendrich, Stephan Fritsch, Susanne Schoepe und David Zechmeister dabei.
Bilder: Peter Fendrich (zum Vergrößern anklicken)
|
|
Pflegeaktion von BUND und AGD am 15. Februar 2020 auf dem Schlüsselberg
Fachlich begleitet vom BUND Markgröningen führte der AGD am 15. Februar eine Landschaftspflegeaktion auf dem Schlüsselberg durch. Dabei wurden Ziele der Denkmalpflege und des Naturschutzes verknüpft: Dem AGD ist es wichtig, das Kulturdenkmal des Burgstalls offen zu halten. Außerdem wollte man auf einer möglichst großen Fläche die Befahrung mit einem Georadar-Gerät ermöglichen. Damit will der AGD im Sommer nach Fundamenten der Schlüsselburg suchen lassen, von der man nicht viel mehr als den Standort weiß. Der Naturschutzverwaltung war daran gelegen, dass die ausufernde Schneebeere, die im Naturdenkmal nichts verloren hat, zurückgedrängt wird. Diesen giftigen Neophyt fressen die Schafe nämlich nicht. Nebenbei sollten Gehölze, die den benachbarten Weinberg tangierten, zurückgeschnitten werden. Zwölf Leute waren mit Freischneidern, Heckenschere und Kettensäge, Misthaken, Rechen und Gabeln bis zur Dämmerung im Einsatz, konnten die großen Mengen an Biomasse aber nicht bewältigen. Deshalb fanden sich einige BUND- und AGD-Mitglieder am 28. und 29. Februar zur Nachpflege ein, konnten aber nicht alles Mähgut abtransportieren. Mithelfer für einen letzten Einsatz sind also herzlich willkommen. Ebenso Spenden zur Mitfinanzierung der Georadar-Prospektion.
|
| |
|
–
Links: Schatzmeister Otto Beck eröffnete am 20. Oktober 2019 die AGD-Ausstellung im Oberen Tor. Rechts: Start der dritten Ebene: Chancen und Projekte (Bilder zum Vergrößern anklicken)
Bilder: Peter Fendrich
AGD-Ausstellung am 20. und 27. Oktober und am 3. November 2019 im Oberen Tor
Die in den 1960er-Jahren einsetzende Abrisswelle in der spätmittelalterlich geprägten Altstadt Markgröningens war ein Impuls zur Gründung des AGD 1969. Zum fünfzigjährigen Jubiläum zog der AGD nun Bilanz in Sachen Denkmalschutz. Im Rahmen der Ausstellung „Unsere Altstadt: Verluste, Erfolge, Chancen” im Oberen Tor blickte er auf verlorene Bausubstanz und erfolgreiche Sanierungsprojekte zurück, schärfte den Blick für nutzenswerte Chancen und stellte Projekte zur weiteren Aufwertung der Altstadt vor.
AGD-Schatzmeister Otto Beck eröffnete am 20. Oktober die von den Beiratsmitgliedern Peter Fendrich, Stephan Fritsch, Helmut Hermann und David Zechmeister in fünf Ebenen gegliederte Ausstellung, die sie anschließend den Vernissage-Besuchern vorstellten:
1. Stadtansichten aus der Vogelperspektive in der Pulverkammer
2. Verluste: Abgebrannte und abgerissene Bausubstanz
3. Erfolge: Pilotprojekte der Stadt und ausgezeichnete Sanierungen
4. Chancen: Noch nicht ausgeschöpfte Potenziale und Projekte
5. Schätze: Neu entdeckte Stadtansichten von 1856
Außerdem im Angebot: eine Beamer-Show zum Substanzverlust der Altstadt und Kurzfilme mit den drei verbliebenen Gründungsmitgliedern des AGD: Prof. Heinz Griesinger, Heinz Oechsner und Kurt Roller.
Die Ausstellung war meist an der Kapazitätsgrenze. Viele Besucher mussten erst mal warten und konnten sich die Zeit mit der Fehlersuche auf alten Ansichten vertreiben. Die Resonanz war durchweg positiv. Einige Besucher brachten zudem wertvolle Impulse mit ein.
Auf vielfachen Wunsch überlegt der AGD, die Ausstellung nochmals zu zeigen, und stellt die Ausstellungstafeln hier verkleinert (96 dpi) zum Download als PDF (12 MB) bereit. Weitere Fotos finden sich beim Jubiläums-Rückblick.
|
| |
|
Trotz anhaltenden Regens waren die Führungen beim Tag des Offenen Denkmals 2019 gut besucht. Links: Wimpelinhof. Mitte: Führung in der Oberen Kelter, rechts: zum Abbau reaktivierter Karren aus der Oberen Kelter
Bilder: Peter Fendrich
–
Breit gefächertes Angebot an Führungen und Besichtigungsmöglichkeiten
Zum Tag des Offenen Denkmals am 8. September 2019 hatten der Förderverein Bartholomäuskirche, das Bürgerforum Unterriexingen, der Bürgerverein Markgröningen und der AGD ein umfangreiches Programm an Führungen und Besichtigungsmöglichkeiten zusammengestellt. Trotz anhaltenden Regens war die Nachfrage teils überraschend groß. Im Oberen Tor zählte der Bürgerverein insgesamt 120 Besucher.
An der Frauenkirche, auf dem Kirchplatz und im Wimpelinhof waren Cafés eingerichtet. Kartoffel- und Zwiebelkuchen waren im Wimpelinhof umgehend ausverkauft. Besser als Bücher ließen sich die Karten zum Konzert von „Des Geyers schwarzer Haufen” verkaufen, die am 23. November zum AGD-Jubiläum im Spitalkeller auftraten.
|
|
|
|
| |
|
|
|
|
|
|
|
|
AGD-Jahresexkursion am 18. Mai 2019 nach Frankfurt am Main
Der enorme Besucherzuspruch gibt der Stadt Frankfurt recht, die zwischen Römer und Dom 36 ehemalige Altstadthäuser nach überlieferten Plänen rekonstruieren oder entsprechend der ursprünglichen Kubatur neu gestalten ließ. Wo lange ein Betonklotz der Bauverwaltung das Bild bestimmte, stellte Stadtführer Helmut Zwecker 15 Rekonstruktionen bedeutender Fachwerkbauten wie die „Goldene Waage”, das „Rote Haus” oder das „Haus Rebstock” vor. Zu diesem Ensemble zählt auch das Stadthaus mit Fundamenten der karolingischen Pfalz und Resten eines römischen Bades, das Kurt Hahn stellvertretend für Roswitha Feil erläuterte. Im freien Zeitfenster konnten die 30 Exkursionsteilnehmer das Karmeliterkloster oder das Archäologische Museum, den Römer, den Dom oder die Paulskirche besuchen.
|
 |
|
 |
 |
|
 |
–
Impressionen von der AGD-Exkursion am 18. Mai 2019 nach Frankfurt am Main. Rechts unten: Ausschnitt aus einer vom Archäologischen Museum Frankfurt und Archimedix erarbeiteten Rekonstruktion der Pfalz
Bilder: Helmut Hermann und Peter Fendrich (zum Vergrößern Bilder anklicken)
–
–
–
|
|
|
|
 |
|
 |
|
–
Stadt und AGD haben den Sanierungspreis 2019 für die Renovierung des Gebäudes Marktplatz 4 an Rainer und Renate Gessler verliehen. Rechts davon Bürgermeister Rudolf Kürner und AGD-Vorsitzender Günther Mertz
Bild: Peter Fendrich
|
|
|
|
|
|
Mitgliederversammlung des AGD am 20. März 2019
Im Rahmen der Mitgliederversammlung des AGD am 20. März 2019 haben Bürgermeister Rudolf Kürner und AGD-Vorsitzender Günther Mertz den von Stadt und AGD gemeinsam ausgelobten Sanierungspreis an Rainer und Renate Gessler für die Renovierung des Gebäudes Marktplatz 4 verliehen. Kurzbeschreibung des Gebäudes (PDF)
Für 50-jährige Mitgliedschaft ehrte der AGD die Gründungsmitglieder Prof. Dr. Heinz Griesinger, Heinz Oechsner, Kurt Roller und die evangelische Kirchengemeinde, vertreten durch Pfarrer Dr. Frank Dettinger. Ulrich Bez wurde für 40-jährige Mitgliedschaft geehrt.
Verabschiedet wurden der 2. Vorsitzende Peter Ebeling und die Fachbeiratsmitglieder Prof. Dr. Walter Kern, Heinz Oechsner und Traugott Plieninger, die in die zweite Reihe treten wollten. Ihnen dankte Mertz ebenso wie seinem Vorgänger Dr. Walter Ebner für die gute Aufstellung des Vereins.
In den Vorstand wurden Günther Mertz (1. Vorsitzender), Ariane Schröfel (2. Vorsitzende), Helmut Hermann (Schriftführer) und Otto Beck (Schatzmeister) gewählt.
In den Fachbeirat wurden Rudolf Dürr, Erwin Elser, Roswitha Feil, Peter Fendrich, Stephan Fritsch (neu), Wolfgang Löhlein, Cornelia Pagel (neu), Birgit Schmitt (neu), Susanne Schoepe (neu) und David Zechmeister berufen. Die Rechnungsprüfer Margarete David und Gerhard Schmid wurden in ihrem Amt bestätigt.
Die zahlreich erschienenen Mitglieder rief Mertz auf, sich rege an der Gestaltung der Aktivitäten zum 50-jährigen Jubiläum des AGD im November 2019 zu beteiligen.

Günther Mertz ehrte Heinz Oechsner, Kurt Roller, Prof Dr. Heinz Griesinger und die evang. Kirchengemeinde, vertreten durch Pfarrer Frank Dettinger, für 50-jährige und Ulrich Bez (2. v. l.) für 40-jährige Mitgliedschaft.
Bild: Peter Fendrich

Publikum beim Vortrag von Dr. Erich Viehöfer über den Strafvollzug im Arbeitshaus Markgröningen nach der Mitgliederversammlung 2019 (zum Vergrößern Bilder anklicken)
Bild: Peter Fendrich
|
|
|
|
|

Einst und jetzt: Sanierungspreis-Objekte 2018: Gaißergässle 2 und Schlossgasse 5. Zum Vergrößern anklicken
Bilder: Albert Jores, Peter Fendrich u. Stadtverwaltung (2)
Stadt und AGD würdigen am 28. März 2018 Dr. Christian Derpa und Thomas Weishaar
Im Anschluss an die Mitgliederversammlung am 28. März 2018 übergaben Bürgermeister Rudolf Kürner und AGD-Vorsitzender Walter Ebner den mit 1000 Euro dotierten Sanierungspreis an Dr. Christian Derpa für das Haus Gaißergässle 2 und an Thomas Weishaar für das Haus Schlossgasse 5. Einst Stammhaus der Seilerei Näher wurde das Gaißergässle 2 in ein Einfamilienhaus umgebaut. In Schlossgasse 5 wurde das Notariat untergebracht. Beide Objekte wurden energetisch vorbildlich saniert. Das Notariat wird zudem an die regenerative Nahwärmeversorgung angeschlossen.

Verleihung des Sanierungspreises 2018 Von Links: Stadtbaumeister Klaus Schütze, die Bauherren Dr. Christian Derpa und Thomas Weishaar, AGD Vorsitzender Dr. Walter Ebner und Bürgermeister Rudolf Kürner
Bild: Peter Fendrich
_
|
|
Neue Satzung einstimmig beschlossen
Bei der Mitgliederversammlung am 28. März 2018 im Spitalkeller zog der AGD-Vorsitzende Dr. Walter Ebner eine positive Jahresbilanz, bedankte sich beim Fachbeirat und stellte ein ereignis- und arbeitsreiches Jahr vor dem 50-jährigen Vereinsjubiläum in Aussicht. Der neue Schatzmeister Otto Beck verzeichnete in seinem ausführlichen Bericht einen Haushaltsüberschuss, weil die vorgesehenen Mittel für die geophysikalischen Untersuchungen im Pfarrgarten, im Kirchhof des Spitals und im Schlosshof noch nicht abgerufen wurden. Rechnungsprüfer Gerhard Schmid bescheinigte Beck und Vorgänger Kurt Roller eine vorbildliche Kassenführung. Die von Prof. Heinz Griesinger beantragte Entlastung des Vorstands erfolgte einstimmig.
Die von Prof. Dr. Walter Kern und Peter Fendrich erarbeitete neue Satzung wurde von den Mitgliedern einstimmig gutgeheißen. Dabei wurde unter anderem dem Wunsch von Bürgermeister Rudolf Kürner entsprochen, nicht mehr kraft Amtes dem AGD-Vorstand anzugehören. In Auseinandersetzungen um den Denkmalschutz könne er nicht Stadt und Verein gleichzeitig vertreten und sei mehrfach befangen gewesen. Sein Ausscheiden kündigte auch Dr. Walter Ebner an. Er werde bei der nächsten Wahl nicht mehr für den Vorsitz kandidieren, um den von ihm eingeleiteten Generationenwechsel weiter voranzubringen.
Im Anschluss an die Mitgliederversammlung und die Verleihung des Sanierungspreis für die von Stadt und AGD ausgewählten Objekte hielt Dr. Walter Ebner einen gut besuchten Vortrag über die von Albrecht Dürer skizzierte Belagerung der Festung Hohenasperg im Jahre 1519 und die Rolle Gröningens als Hauptquartier der Streitmacht des Schwäbischen Bundes.
|
|

Der neue Schatzmeister Otto Beck bei seinem ersten Kassenbericht
Bild: Peter Fendrich

Prof. Dr. Walter Kern stellte die neue Satzung vor
Bild: Peter Fendrich
|
|
|
|

AGD-Mitgliederversammlung 2018 im Spitalkeller (zum Vergrößern Bild anklicken)
Bild: Peter Fendrich
–
|
|
| |
|
|
Breit gefächertes Angebot an Führungen und Besichtigungsmöglichkeiten
Zum Denkmaltag am 10. September hatten die Stadtführer, der Förderverein Bartholomäuskirche, das Bürgerforum Unterriexingen, der Bürgerverein Markgröningen und der AGD ein umfangreiches Programm an Führungen und Besichtigungsmöglichkeiten unter dem Motto „Macht und Pracht” zusammengestellt. Die Nachfrage war groß. Der absolute Renner war aber das Riexinger Schloss: Zu den beiden Führungen kamen 120 und rund 250 Besucher! Eine große Herausforderung, die Führer Gerhard Schmid im Schloss zu meistern hatte. Peter Fendrichs Führung zur Grüninger Reichsburg war mit 75 Teilnehmern ebenfalls überfrequentiert. Der scheidende Pfarrer Traugott Plieninger führte durch das weitgehend geräumte Pfarrhaus, das erstmals vom Keller bis zum Dachstock besichtigt werden konnte. Seit langem war das Lapidarium in der Friedhofskapelle wieder mal zugänglich. Dr. Monika Balzert stellte die hier aufgestellten Epitaphien von Honoratioren vor. Bei ihrer Kirchenführung stellte Dr. Petra Schad die gewagte These auf, die Bezeichnung als Bartholomäuskirche sei eine Erfindung von Ludwig Heyd. Im Oberen Tor zählte der Bürgerverein insgesamt 120 Besucher. An der Frauenkirche, auf dem Kirchplatz und im Wimpelinhof waren Cafés eingerichtet.
–
Komplettes Programm zum Denkmaltag 2017 in Markgröningen (PDF)
|
|
|

Gerhard Schmid führte durch das Schloss
|
|

Riexinger Schloss von Westen: angebaut an die Burg
Bilder: Peter Fendrich
|
|
|
|

Bauzeitliche Treppe zum Dachstock des Pfarrhauses
Bild: Peter Fendrich
|
|

Café von AGD und Bürgerverein im Wimpelinhof. Das Wetter war besser als befürchtet. Der große Schirm wurde nicht gebraucht
Bild: Mechthild Fendrich
|
|
|
| |
|
|
Kellerführungen von Markgröningen aktiv am 7. und 8. September 2017
Am 7. und 8. September bot Markgröningen aktiv in Kooperation mit dem AGD Abendspaziergänge durch vier stattliche Gewölbekeller in der Markgröninger Altstadt an. Jeweils vier Gruppen à 30 Teilnehmer schwärmten gleichzeitig aus und stiegen im Pfarrhaus, in der Ostergasse, am Marktplatz und im Fruchtkasten in den Untergrund. In jedem Keller vermittelten AGD-Mitglieder historische Einblicke, Kultureinlagen sorgten für Auflockerung. Zum Abschluss trafen sich alle vier Gruppen im riesigen Keller der Unteren Kelter, wo die örtlichen Wengerter zum Umtrunk mit den Musikern Alban Wekenmann und Uwe Kastner geladen hatten. Obwohl das Highlight, der Verbindungsgang zwischen den Kellern von Fruchtkasten und Unterer Kelter nicht genutzt werden durfte, war die Resonanz so überwältigend, dass eine Wiederholung beschlossen wurde.
|
|
|

Verbindung der Keller von Fruchtkasten und Unterer Kelter
Bild: Peter Fendrich
|
|

Erste Gruppe im Keller des Pfarrhauses I bei der Kellerführung am 8. September 2017. Mit Gitarre: Alban Wekenmann
Bild: Peter Fendrich
|
|
|
| |
|
|
Führung am 20. Mai 2017 in der Reihe „Zu Gast beim Nachbarn”
Wolfgang Könninger vom Bürgerverein Oßweil führte die Gäste vom AGD am 20. Mai 2017 durch seinen Heimatort, der 2016 sein 1200-jähriges Jubiläum nach der ersten Erwähnung feierte. Von 500 bis 746 gehörte Oßweil zum teilautonomen Herzogtum Alamannien. dann zum fränkischen Reich und ab 816 zum Benediktinerkloster Murrhardt, das drei Rittern als Entschädigung für ihren Wehrdienst die Niederlassung in Oßweil erlaubte. Um deren Sitze entwickelten sich drei Siedlungskerne: um die einstige Wasserburg, in der die Herren von Oßweil residierten, um die nicht mehr sichtbare Turmhügelburg und um die erstmals 1452 erwähnte Holderburg nordöstlich von der Januariuskirche. Mehrfach wechselten die Oßweiler Ortsteile den Besitzer. Letztlich gehörte aber der gesamte Ort den Herzögen von Württemberg und damit zum Amt Grüningen, abgelöst vom Oberamt Ludwigsburg.
 |
|

|
|
Links:Angelika Hirth-Neukamm, Vorsitzende des Oßweiler Bürgervereins, und Führer Wolfgang Könninger. Rechts:Schloss Oßweil, Januariuskirche und Holderburg
Bilder: Peter Fendrich
|
|
|
| |
|
|
Generationenwechsel setzt sich fort
Bei der Mitgliederversammlung am 29. März 2017 konnte der AGD-Vorsitzende Dr. Walter Ebner auf ein ereignisreiches Jahr zurückblicken: In der neuen Ausgabe der historischen Reihe „Durch die Stadtbrille“ widmeten sich die Autoren unter anderem dem 100. Geburtstag des Groninger Zügles. Die begleitende Ausstellung im Oberen Tor zog Jung und Alt an. Auch das neue Geschichtsportal im Internet suche in der Region ihresgleichen. Diese Projekte konnten, so Ebner, nur durch großes Engagement von Mitgliedern des Fachbeirats gestemmt werden.
Bewegend für historisch Interessierte sei das umstrittene Bauvorhaben am Spitalplatz und die Frage, wie die bestehende Altstadtsatzung künftig umgesetzt werde. Ebner nutzte die Gelegenheit, an die Verwaltung zu appellieren, den AGD frühzeitig in derartige Planungen einzubinden.
Besonderer Dank ging an Dr. Petra Schad, die über ihre Arbeit als Stadtarchivarin hinaus das Team der Stadtführer betreut und bei der Stadtbrille mitwirkt. Eine wichtige und unerlässliche Stelle, betonte Ebner und mahnte die anwesenden Gemeinderäte angesichts aktueller Diskussionen, nicht beim Stadtarchiv den Rotstift anzusetzen.
2017: Neue Projekte und zahlreiche Exkursionen
Auch 2017 hat sich der Verein einiges vorgenommen: Die Versammlung stimmte für die Durchführung einer Georadaruntersuchung des Pfarrgartens, um Aufschlüsse über frühere Bebauungen zu gewinnen. Weiterhin stehen wieder zahlreiche Exkursionen, ein interessanter Jahresausflug und der Tag des Offenen Denkmals auf dem Programm.
Wahlen: Generationenwechsel setzt sich fort
Vorstandschaft und Fachbeirat des AGD verjüngen sich weiter. Damit setzt sich der 2015 eingeleitete Generationenwechsel fort. Mit Gerhard Liebler und Kurt Roller stellten gleich zwei Gründungsmitglieder bei der Mitgliederversammlung ihre Posten als Fachbeirat und Schatzmeister zur Verfügung. Auch unsere langjährigen Beiratsmitglieder Dr. Marlene Löffler und Hermann Beck traten zurück.
Der AGD-Vorsitzende Dr. Walter Ebner bedankte sich für das jahrelange und unermüdliche Engagement. Gerhard Liebler war etliche Jahre Vorstandsmitglied, Stadtführer und Autor vieler Aufsätze zur Stadtgeschichte. Mit Kurt Roller verlässt „die gute Seele des Vereins“ die Vorstandschaft, so Dr. Ebner in seinen Dankesworten. Seit 1969 war die Vereinskasse bei ihm in besten Händen. Gleichzeitig übernahm er in dieser Zeit viele wichtige Verwaltungsaufgaben. Zu seinem Nachfolger wählte die Versammlung Otto Beck.
Die Vorstandsmitglieder Dr. Walter Ebner, Wolf-Peter Ebeling und Ariane Schröfel wurden in ihren Ämtern bestätigt. In den zehnköpfigen Fachbeirat wurden Rudolf Dürr, Erwin Elser, Roswitha Feil, Peter Fendrich, Helmut Hermann, Prof. Walter Kern, Wolfgang Löhlein, Heinz Oechsner, Traugott Plieninger und David Zechmeister gewählt.
 |
|
 |
–
Mitgliederversammlung des AGD am 29. März 2017 im Spitalkeller. In der Mitte Gerhard Liebler und Prof. Heinz Griesinger, der traditionell die Entlastung des Vorstands moderierte. Rechts: Schatzmeister Kurt Roller bei seinem letzten Rechenschaftsbericht
Bilder: Peter Fendrich
|
|
| |
|
|
Stadt und AGD verleihen Sanierungspreis am 29. März 2017 an Familie Hanisch
Im Anschluss an die Mitgliederversammlung am 29. März 2017 übergaben Bürgermeister Rudolf Kürner und AGD-Vorsitzender Walter Ebner den mit 1000 Euro dotierten Sanierungspreis an Markus Hanisch für das Konversionsprojekt „Unteres Schafhaus” im Glemstal. Andrea und Markus Hanisch haben mit dem Architekten Wolfram Flatzeck den ehemaligen Schafstall außen und innen so originalgetreu wie möglich in ein Wohnhaus verwandelt, obwohl der Denkmalschutz bereits aufgehoben und der Stall zum Abbruch freigegeben war. Siehe Projektbeschreibung (PDF).
–
Verleihung des Sanierungspreises für das Untere Schafhaus: Bürgermeister Rudolf Kürner, AGD-Vorsitzender Dr. Walter Ebner, Bauherr Markus Hanisch, Architekt Wolfram Flatzek, Stadtbaumeister Klaus Schütze (v.l.)
Bilder: Peter Fendrich
|
|
| |
|
|
AGD-Ausstellung im Oberen Tor vom 4. bis 18. Dezember 2016
Nach langem Kampf um einen Bahnanschluss wurde die Bahnstrecke Ludwigsburg-Markgröningen am 4. Dezember 1916 wegen des Weltkriegs sang- und klanglos in Betrieb genommen. Zum hundertjährigen Jubiläum der Inbetriebnahme verzichtete die Stadt erneut auf Feierlichkeiten. Doch eröffnete der Arbeitskreis Geschichtsforschung und Denkmalpflege (AGD) am 4. Dezember eine Ausstellung zur wechselhaften Geschichte der Bahnstrecke – von den ersten Projektskizzen bis zur Reaktivierungsdiskussion. Am ersten Tag waren wir dem Besucherandrang kaum gewachsen: Gezählt wurden über 530 Besucher! Mehr ging nicht wegen der Brandschutzauflagen im Oberen Tor. Etliche Besucher mussten auf die nächsten Termine vertröstet werden. Viele suchten den Dialog, um zum Ausdruck zu bringen, dass sie wie der BUND eine Bahnreaktivierung statt der angedachten Bummel-Stadtbahn wollen. Wegen zusätzlicher Haltepunkte und längerer Umsteigezeit in Ludwigsburg wäre die Stadtbahn nicht schneller als der Bus in Ludwigsburg. Die reaktivierte Eisenbahn wäre hingegen doppelt so schnell. Bei der abendlichen Gesprächsrunde mit dem Bahnbau-Experten Rainer Christmann zur geplanten Stadtbahn kamen weitere Argumente pro Reaktivierung auf den Tisch. Fazit: Die Gröninger wollen ihr „Zügle” wiederhaben.
|
|
|
|
|
–
Ausstellung 100 Jahre Bahnanschluss im Oberen Tor: thematisch gegliedert in vier Ebenen von der Vorgeschichte über Bahnbau und Betrieb bis zur Reaktivierungsdiskussion
Bilder: Peter Fendrich
Banner zur AGD-Ausstellung 100 Jahre Zügle als PDF
AGD-Artikel zur Geschichte und Reaktivierung der Bahnstrecke Ludwigsburg-Markgröningen
AGD-Galerie zur Bahnstrecke Ludwigsburg-Markgröningen
|
|
|
|
| |
|
|
|
|
AGD-Exkursion zum Bahnjubiläum am 3. Dezember 2016
Zum hundertjährigen Jubiläum der Bahnstrecke Ludwigsburg-Markgröningen bot der AGD eine Ausfahrt an, auf der man nachempfinden konnte, wie die Gröninger früher mit ihrem „Zügle” unterwegs waren. Wir fuhren ab Schwieberdingen in Plattformwagen der GES gezogen von der Dampflok 38.3119 nach Weissach. Hier stellte Herbert Mann die Kirchenburg vor, die im 13. Jahrhundert in die Hände des Klosters Maulbronn kam. Um den alleinstehenden Kirchturm, der im Mittelalter ein Bergfried war, besichtigten wir das ehemalige Herrenhaus, die Kirche und die außergewöhnlich gut erhaltenen Gaden entlang der Wehrmauer.
|
|
|
|
|
–
Kirchturm und Gaden in der Weissacher Kirchenburg und Feuriger Elias der GES im Weissacher Bahnhof
Bilder: Peter Fendrich
|
|
|
|
| |
|
|
|
|
|
|
 |
|

Szene aus „Reicher Philipp – Armer Konrad”: Im Hirsch beginnt der Aufruhr.
Bild: Peter Fendrich
|
|
Theaterstück zum AGD-Jubiläum am 21./22. November 2019
Zu seinem fünfzigjährigen Jubiläum präsentierte der AGD in der Bartholomäuskirche das Theaterstück „Reicher Philipp – Armer Konrad”. Wegen andauernder Verarmung und trickreicher Erhöhung der Abgaben erhoben sich im Jahr 1514 im Herzogtum Württemberg zahlreiche Untertanen gegen die von der „Ehrbarkeit“ repräsentierte Obrigkeit. In Grüningen animierte Pfarrer Dr. Reinhard Gaißer den „Gemeinen Mann“, sich dem berechtigten Aufstand anzuschließen. Dabei wurde Gaißer zum Gegenspieler des reichen Kaufmanns und Vogts Philipp Volland. Beide Vorstellungen waren ausverkauft und ernteten reichlich Beifall. Beim anschließenden Empfang im evangelischen Gemeindehaus würdigte Bürgermeister Rudolf Kürner das Wirken des AGD. Tags darauf feierte der AGD mit der Gruppe „Des Geyers schwarzer Haufen” im Spitalkeller.
Bilder zum Vergrößern anklicken. Weitere Motive finden sich hier und werden demnächst auch zum Download bereitgestellt.

Norbert Kretschmer als Gaißer, Saskia Mülleck und Günther Mertz als Moderatoren und Peter Maier als Volland

Ensemble des Stücks “Reicher Philipp – Armer Konrad”
Bilder: Peter Fendrich

„Des Geyers schwarzer Haufen” spielte am 23.11.2019 im Spitalkeller auf
Bild: Peter Fendrich

Zum 50jährigen Jubiläum 2019 beteiligte sich der AGD erstmals im Festzug des Schäferlaufs
Bild: Helmut Hermann
–
–
|
|

Blick auf historische Karten und auf den Stromberg vom Enzblick
Bild: Helmut Hermann
Rundwanderung mit Peter Fendrich am 16. Juni 2019
Entlang der 20 km langen Strecke bot Peter Fendrich 25 Teilnehmern viele historische Einblicke: Vom Heilig-Geist-Spital, wo zuvor eine Burg stand, führte er zur ehemaligen Reichsburg, von dort zum Burgstall des Remminger Schlössles und weiter zum Mittagessen im Schellenhof. Dann ging es zum Flößerkanal bei der Wüstung Remmingen und entlang der Enz zum Riexinger Schloss mit anschließender Kaffeepause in den Enzwiesen. Die dritte Etappe führte am nördlichen Waldrand des Muckenschupfs entlang zum Burgstall Dauseck, die vierte zum Burgstall der Schlüsselburg. Den Burgställen Dauseck und Schlüsselburg will der AGD mit Georadar auf den Grund gehen. Die Teilnehmer legten dankenswerterweise einen Grundstock zur Finanzierung der Prospektion. Unter ihnen war auch Dr. Christoph Engels, der die Burgen im Kreis für die Deutsche Burgenvereinigung erfasst.
Faltblatt von Peter Fendrich zur Burgenwanderung (PDF)
ARTE-Video über mittelalterlichen Burgenbau, ARTE 2019, 91 min.
|
| |
|
2019 erstmals AGD-Gruppe im Festzug des Schäferlaufs
Der AGD feierte 2019 sein fünfzigJähriges Bestehen. Deshalb wirkte er erstmals mit einer eigenen Gruppe im Festzug des Schäferlaufs mit: als spätmittelalterlich gekleidete Gruppe mit Bundschuh-Fahne aus der Zeit des Aufstands des Armen Konrads 1514. Die Festzugteilnehmer der AGD-Gruppe konnte man im Stück „Reicher Philipp – Armer Konrad” wiedersehen, das der AGD an seiner Jubiläumsfeier am 21. und 22. November 2019 in der Bartholomäuskirche aufführte.

Zum 50jährigen Jubiläum 2019 konstituierte sich die AGD-Gruppe „Reicher Philipp – Armer Konrad”
Bild: Günther Mertz
|
|
|
Nachruf auf Gerhard Liebler
Mit Gerhard Liebler hat der AGD einen wichtigen Mitstreiter, Geschichtsforscher, Publizisten und Stadtführer verloren. Er war ein Mann der ersten Stunde, gehörte zu den Gründungsmitgliedern, die vor 50 Jahren den „Arbeitskreis Geschichtsforschung, Heimat- und Denkmalpflege Markgröningen“ aus der Taufe gehoben haben, und wirkte bis vor Kurzem als treibende Kraft im Fachbeirat des AGD mit.
|
|

Gerhard Liebler verstarb am 15. Januar 2019 im Alter von 90 Jahren und wurde am 22. Januar bestattet.
|
|
Gerhard Liebler war zudem Motor des Arbeitskreises Museum und schrieb viele Beiträge zur Markgröninger Geschichte, die ihn um Jahrzehnte überleben werden. Dabei hat er die Fakten nicht nur zusammengetragen, sondern in der AGD-Reihe Durch die Stadtbrille gedeutet und sprachlich gewandt vermittelt. In seinen selbst publizierten Werken hat er einen eigenen dichterischen Stil entwickelt. Dieser zeigt sich insbesondere in seinem 2001 erschienenen Buch „Markgröningen – poetische Streifzüge durch die Stadt und ihre Geschichte“. 2017 veröffentlichte er seine Jugenderinnerungen in Eckwälden. Dabei sparte er die Zeit des Dritten Reiches nicht aus, berichtete darüber so, wie er es empfunden hatte – als guter Zeitzeuge. Bekannt war er auch als Autor für die städtische Jahreschronik. Als seine Kräfte nachließen, hat er darunter gelitten, dass er die Chronik für 2018 nur bis einschließlich November fertigstellen konnte. Der AGD verliert mit Gerhard Liebler einen unermüdlichen Forscher und versierten Autor.
–
|
|
|
|
| Außerordentliche Mitgliederversammlung am 12. Sept. 2018
Um einen Großauftrag zur Georadar-Untersuchung von fünf Flächen in der Altstadt vergeben zu können, hat der AGD-Vorstand am 12. September 2018 eine außerordentliche Mitgliederversammlung einberufen. Etwa 40 Prozent der Mitglieder sind erschienen und haben einstimmig der Vergabe an den preisgünstigeren Anbieter GGH zugestimmt. Dessen „Kampfpreis“ war allerdings an ein enges Zeitfenster gebunden und setzte voraus, dass der AGD durchgehend zwei „Messdiener“ genannte Assistenten bereitstellt. Deren Einteilung wurde gleich im Anschluss vorgenommen.
Die erforderlichen kartographischen Grundlagen hatte die sehr kooperative Stadtverwaltung bereitgestellt. Bei der GIS-Einmessung der Untersuchungsflächen im Schloss, im Spital, im Pfarrgarten, am Esslinger Tor und an der Vaihinger Steige leistete das Vermessungsbüro Gröner wertvolle Dienste. Sehr hilfreich war auch das Landesamt für Denkmalpflege, das seinerseits großes Interesse an den Untersuchungsergebnissen signalisierte. Diese sollen auch der Unteren Denkmalbehörde, der Stadtverwaltung und den jeweiligen Grundstückseignern zur Verfügung gestellt werden.
Die außerordentliche Mitgliederversammlung nutzte der 1. Vorsitzende Dr. Walter Ebner, um den im März angekündigten Stabwechsel zu vollziehen. Sein Stellvertreter Peter Ebeling und Stadtarchivarin Dr. Petra Schad dankten für sein großes Engagement und die gelungene Verjüngung des Fachbeirats, die erfreuliche Früchte getragen habe.
Für Ebners Nachfolge hatte sich das langjährige Mitglied Günther Mertz (59) zur Wahl gestellt. Er wurde einstimmig gewählt und tritt sein neues Amt mit der Eintragung ins Vereinsregister an.

Am 12. September 2018 wurde Günther Mertz (links) zum Nachfolger des bisherigen Vorsitzenden Dr. Walter Ebner gewählt
Bild: Peter Fendrich
–
–
|
|
|
|
Jahresexkursion des AGD am 23. Juni 2018
Die Jahresexkursion 2018 führte ins Kernland des Grafen Albrecht II. von Hohenberg, der ab 1280 auch in Grüningen residierte, die Stadt Rottenburg gründete und 1298 in Kloster Kirchberg beigesetzt wurde.
Das von Heinz Oechsner zusammengestellte und zeitlich perfekt abgestimmte Programm sah morgens eine Führung durch das von den Hohenbergern gegründete Kloster Kirchberg und die Besichtigung des Atomkeller-Museums in Haigerloch vor. Nach dem Mittagessen in der Haigerlocher Krone standen ein Besuch des Diözesanmuseums in Rottenburg oder ein Stadtbummel mit Blick in den Dom zur Wahl. Abschließend besichtigte man die Sülchenkirche, in deren Krypta für Rottenburger Bischöfe spektakuläre archäologische Funde und Überreste von Vorgängerbauten präsentiert werden.
Unter den 33 Teilnehmern waren auch fünf Gäste des Vereins für Heimatgeschichte Sachsenheim.

Teilnehmer des Jahresausflugs am 23. Juni 2018
Bild: Peter Fendrich
|
|
|
|
|
|
|
|
Reste des Kreuzgangs in Kloster Kirchberg, Schloss Haigerloch vom Römerturm, Rottenburger Dom, Sülchenkirche und Grabplatte des Grafen Albrecht II. von Hohenberg (Bilder zum Vergrößern anklicken) Bilder in PDF zum Download
Bilder: Peter Fendrich
|
|
|
|
|
|
|
|
Führung von Peter Fendrich am 7. April 2018
Während die Feldflur durch Zersiedlung und Flurbereinigung stark überprägt wurde, konservieren Waldflächen historische Strukturen und Relikte. Vor allem, wenn sie – nomen est omen – wie der Rotenacker nicht immer bewaldet waren. So finden sich hier vielfältige Spuren, die es zu interpretieren gilt. Auf Wunsch der Landfrauen vermittelte Peter Fendrich am 7. April 2018 historisch-geographische Einblicke im Rahmen eines Waldspaziergangs abseits ausgetretener Pfade. Schwerpunkte waren die Römerstraße, der herrschaftliche Steinbruch, das Remminger Schlössle und der Herdweg am Waldsaum.

56 Landfrauen und viele andere nahmen am historisch-geographischen Waldspaziergang durch den Rotenacker teil (Bild zum Vergrößern anklicken)
Bild: Peter Fendrich
–
–
|
|
Die exklusive Auflage ist ausverkauft
Seit Erscheinen der letzten Stadtbrille haben einige Leute großes Interesse an der im Umschlag abgebildeten Stadtsilhouette von 1797 bekundet. Sie zeigt die komplett erhaltene Altstadt mit allen vier Toren und geschlossenem Mauerring, außerdem zahlreiche interessante Details. Der AGD ließ 30 Reproduktionen anfertigen, die trotz zu später Lieferung schnell ausverkauft waren. Im Preis inbegriffen war ein kleiner Aufschlag, mit dem der AGD ein großes Exemplar fürs Museum im Wimpelinhof und ein aufgerolltes Exemplar für die Stadtführer finanziert hat.

Aufgefrischte Stadtsilhouette von 1797 mit Legende. Das älteste realitätsnahe Panorama reicht von der Schlüssselburg bis zum Asperg
Quelle: Stadtarchiv Markgröningen
–
–
|
|
Gerhard Liebler signierte sein Buch am 10. Dezember 2017
Beim Adventmarkt rund ums Schloss signierte Gerhard Liebler seine neu erschienene Biographie – benannt nach seinem Heimatort Eckwälden – am Bücherstand des AGD im Wimpelinhaus.
|
|
|
|
–
In Eckwälden, einem Weiler am Fuße der Alb, beginnt 1928 die Biographie von Gerhard Liebler, in die er Schilderungen des Dorflebens und der entbehrungsreichen Arbeit auf Feld und Hof eingebettet hat. Erschienen im Novum-Verlag, Berlin 2017, erhältlich für 14,90 Euro im Buchladen am Marktplatz
Bilder: Peter Fendrich
_
–
|
|
|
Führung mit Marianne Bauer am 11. November 2017
Im Rahmen der Veranstaltungsreihe Zu Gast beim Nachbarn bot der AGD am 11. November 2017 einen Ausflug nach Großsachsenheim an. Marianne Bauer vom Sachsenheimer Geschichtsverein stellte die Evangelische Stadtkirche „St. Fabian und Sebastian“ vor. Mangels Stadtmauer war die ehemalige Wehrkirche, die 1265 erstmals erwähnt wurde, von einer hohen Mauer mit Türmen umgeben. Einbezogen war der ehemalige Herrenhof, der später als württembergische Vogtei diente und heute das evangelische Pfarramt beherbergt. Im Innern der Chorturmkirche stehen noch einige Epitaphien der letzten Herren von Sachsenheim und ihrer Gattinnen. Die Aufmerksamkeit der zehn Gröninger Gäste erregte ein Vollandscher Schenkenbecher im Wappen des Sachsenheimer Vogts Hans Jakob Engelhart auf dem Epitaph für seine Gattin Christina Hahn († 1575).

Wehrkirche in Großsachsenheim von Norden und Wappen Hans Engelharts mit Vollandschem Becher auf dem Epitaph für seine Gattin Christina Hahn (1575)
Bilder: Peter Fendrich (Wappen vergrößern)
–
|
|
Fernsehsendung vom 3. September 2017
In seiner Sendereihe Treffpunkt Baden-Württemberg stellte der SWR am Sonntag, den 3. September 2017, den Schäferlauf in Markgröningen vor. Wer die Ausstrahlung verpasst hat, kann den halbstündigen Film bis 3.9.2018 in der Mediathek anschauen.
–
|
|
AGD-Jahresausflug 2017 nach Straßburg und Reichenweiher
Am Samstag, den 15. Juli 2017, reiste der AGD Markgröningen bei optimalem Reisewetter mit dem Bus ins Elsass. Rudi Popp, Pfarrer am Temple Neuf und Kenner der Reformationsgeschichte, führte durch Straßburg, stellte die Kirchen und Kapellen vor, in denen Martin Bucer, Wolfgang Capito und Mathias Zell gepredigt hatten, und zeigte, wo Johannes Calvin eine evangelisch-französische Gemeinde gründete. Die erste Generation der Straßburger Reformatoren verfolgte einen von Martin Luther unabhängigen Weg. Das bedeutete insbesondere Toleranz gegenüber Katholiken, Wiedertäufern und Schwenckfeldern. Die zweite Reformatorengeneration in Straßburg war dann – vorwiegend aus politischen Zwängen – lutherisch ausgerichtet und ließ Wiedertäufer einkerkern. Am Place des Etudiants verwies Pfarrer Popp auf die Büste von Johannes Mentelin (1410-1478), der – wie Bucer in Schlettstadt geboren – 1466 die erste Bibel in deutscher Sprache druckte. Zuvor hatte Johannes Gutenberg von 1434 bis 1444 in Straßburg seine wesentlichen Druckversuche mit beweglichen Lettern und einer dazu notwendigen besonderen Legierung erfolgreich durchgeführt. Nachfolger Mentelins in Straßburg wurde Johannes Reinhart alias Hans Grüninger.
Zum Mittagessen traf man im ehemals württembergischen Reichenweiher (Riquewihr) ein, um anschließend an einer Stadtführung mit Monsieur Hügel teilzunehmen. Reichenweiher kam 1324 in württembergische Hand. Hier wurde 1482 der Vertrag zu Reichenweiher zur Regelung der Regentschaft in Württemberg und Mömpelgard geschlossen und 1487 Herzog Ulrich geboren. Er vereinbarte 1542 in Reichenweiher mit seinem Sohn Christoph, dass dieser zum evangelischen Glauben konvertiert und damit Anspruch auf die Erbfolge bekommt.
|
|
|
|
–
Links: Beim Jahresausflug 2017 führte Pfarrer Rudi Popp durch Straßburg. Rechts: AGD-Mitglieder vor dem Dolder-Museum in Reichenweiher
Bilder: Marlies Oppenheimer u. Walter Ebner
_
|
|
Austausch und Führung am 5. Mai 2017 in Ludwigsburg
Die eigene Stadtgeschichte einer breiten Öffentlichkeit zu vermitteln, ist Geschichtsvereinen wie dem AGD ein wichtiges Anliegen. Dabei spielt das Internet eine zentrale Rolle, das nicht nur zur Präsentation dienen kann, sondern eine Fülle von neuen Recherchemöglichkeiten bietet. Das Staatsarchiv Ludwigsburg ist sich seiner Rolle als Lieferant von Digitalisaten bewusst und „will mit der regionalen Geschichtskultur ins Gespräch kommen, um diesen Kundenkreis auch künftig bestmöglich bedienen zu können”. Im Rahmen einer vierstündigen Informationsveranstaltung konnten AGD-Mitglieder das Angebot des Landesarchivs BW kennenlernen und Fragen stellen. Überdies stand eine Führung durch die Magazine und Arbeitsräume des Staatsarchivs am Arsenalplatz auf dem Programm.
|
| |
|
Lichtbildvortrag von David Zechmeister am 29. März 2017
Eine Stadt verändert Ihr Bild stetig, das ist der Gang der Zeit. Mal sind es Kriege, Brände, der Fortschritt oder auch der jeweilige Zeitgeist. So musste Markgröningen das Niederreißen seiner Stadtbefestigung über sich ergehen lassen und fand sich später dem unsteten Geist der „Stadtsanierung” ausgesetzt. „In deren Folge ging in den letzten fünfzig Jahren beinahe die Hälfte unserer historischen Bausubstanz verloren.” David Zechmeister zog Bilanz anhand von Zeichnungen und Fotografien. Diese werden sukzessive unter der Rubrik Galerien eingestellt.
|
|
|
|
–
Links: Abriss des Westflügels des Heilig-Geist-Spitals. Rechts: David Zechmeister präsentiert einen Bug des abgerissenen Hauses Kirchgasse 12
Bilder: Eduard Haidle u. Peter Fendrich
–
|
|
Barrierefreie Stadtgeschichte zum Heyd-Geburtstag
|
|

Ludwig Heyd (1792-1852)
Bild: AGD
Um jüngeren Interessierten die Lektüre zu erleichtern, hat Mechthild Fendrich Heyds Stadtgeschichte transkribiert. Eine Abschrift in moderner Typographie steht nun im Artikel-Archiv als PDF zum Download bereit.
|
|
Ludwig Friedrich Heyd wurde vor 225 Jahren am 19. Februar 1792 im benachbarten Bissingen geboren. Heyd hatte neben Theologie auch Geschichte studiert. Während seiner Tätigkeit als Markgröninger Pfarrer publizierte er zahlreiche Werke zur Landes- und Stadtgeschichte, für die er alle verfügbaren Quellen einsah und dokumentierte. Manches, was er zur Geschichte der Stadt und zu den Grafen von Grüningen schrieb, erschien damals jedoch nicht opportun, wurde infolge dessen verworfen und von der modernen Forschung bislang ignoriert. Zu Unrecht, schreibt Peter Fendrich in der Stadtbrille 10/2016. Nach ausführlichem Quellenstudium auf den Spuren Heyds, sieht er dessen Ausführungen zu den Grafen weitgehend bestätigt.
–
–
|
|
Kommune im Profil: VRS stellt Markröningen in RS aktuell vor
Susanne Herrmann hat Markgröningen in der Zeitschrift RS aktuell 1/2017 des Verbands Region Stuttgart portraitiert und mit Bürgermeister Rudolf Kürner gesprochen. Der dreiseitige Beitrag ist im Artikel-Archiv als PDF abgelegt.
–
–
|
|
Gründungsmitglied und Kassenprüferin gestorben
|
|

Marianne Stümpfig
Bild: Richard Zoller
|
|
Wir trauern mit den Angehörigen um unser Gründungsmitglied Marianne Stümpfig, geboren am 14.4.1917, gestorben am 15.1.2017. Sie war Schulsekretärin des Helene-Lange-Gymnasiums in Markgröningen und unterstützte hier die stadtgeschichtlichen Forschungen des Schulleiters Prof. Erhard Lenk. 1969 zählte sie zu den Gründungsmitgliedern des AGD und übernahm bis 2001 das Amt der Kassenprüferin. Sie verstarb in einem Pflegestift in Marbach.
–
–
|
|
Exkursion nach Lienzingen am 1. Oktober 2016
Die AGD-Exkursion nach Lienzingen „hat sich mehr als gelohnt”, wie der Vorsitzende Dr. Walter Ebner betonte. Höhepunkt der Ortsführung war die gut erhaltene Kirchenburg, entstanden im 12. Jahrhundert und spätgotisch überprägt. Warum ausgerechnet Lienzingen eine so gut befestigte Wehrkirche hatte, konnte auch der kompetente Führer Roland Straub nicht erklären. Ihre Wehrmauer war bis zu zehn Meter hoch. Daran angelehnt sind im Kirchhof bis heute Gaden genannte Speicherbauten erhalten. Der AGD erwägt, 2017 auch der Lienzinger Frauenkirche einen Besuch abzustatten.

Kirchenburg in Lienzingen
Bild: Robert Pietschmann, Wikimedia
|
| |
|
Band 10 im September 2016 erschienen
Der zehnte Band der AGD-Reihe Durch die Stadtbrille erschien zum Tag des Offenen Denkmals. Mit neuem Untertitel, aufgefrischtem Layout und einem vergrößerten Format (24 x 19,5 cm) greift diese Ausgabe auf 168 Seiten das ursprüngliche Konzept mit breit gefächerter Themenauswahl quer durch die Jahrhunderte auf.
Erstverkauf am 11. September 2016, seither im Buchhandel zum Preis von 19,80 Euro. ISBN 978-3-00-053907-7
|
|

Neues Titel-Design für Stadtbrille 10/2016
Bild: Roswitha Feil
|
|
|
|
|
 |
| |
|
|
|
|
|
|
–
Impressionen vom Tag des Offenen Denkmals: Café im Wimpelinhof, neuer Rollup, Führung mit Rudolf Dürr
Bilder: Peter Fendrich
|
|
|
|
|
Zum Tag des Offenen Denkmals am 11. September organisierte der AGD Führungen zum Rathaus, zum Wimpelinhof mit Oberem Tor und am Spitalplatz zum Bauprojekt „Unteres Tor” im Kontext mit dem Heilig-Geist-Spital und der Stadtbefestigung. An den Info-Ständen im Rathaus und im Wimpelinhof wurden der neu erschienene Band 10 und frühere Ausgaben der AGD-Reihe Durch die Stadtbrille sowie die neue AGD-Briefmarke „100 Jahre Bahnstrecke Ludwigsburg-Markgröningen” angeboten. Zusammen mit dem Bürgerverein Markgröningen bewirtschaftete der AGD ein Café im Wimpelinhof, wo das städtische Museum und das Obere Tor offenstanden. Mehr Infos im AGD-Faltblatt (PDF) zum DenkmaltagArtikel-Ausschnitt zum Bauprojekt „Unteres Tor” im neuen Band 10 der Stadtbrille
|
|
|
|
|
|
|
|
|
|
Exkursion mit Prof. Adolf Steiner am 16. Juli 2016
Imposante Baumbestände, seltene Pflanzen und beschauliche Wiesen in einem fast nicht enden wollenden Park. Schloss Hohenheim und seine Gärten halten viele Überraschungen bereit. Prof. Adolf Steiner kennt die Anlage wie seine Westentasche und er ließ gerne die Mitglieder des AGD in Selbige blicken.
Urheber all dieser Pracht war Herzog Carl Eugen (1728 – 1793), der 1776 den Grundstein für das Schloss und den zugehörigen Park legte. Die Standortentscheidung lässt sich gut nachvollziehen: Der weite Blick über die Fildern, die Ruhe der Abgeschiedenheit und Weitläufigkeit mögen Ihres dazu beigetragen haben, den Herrscher aus dem Stuttgarter Kessel hierher zu locken. Gemeinsam mit seiner zweiten Frau Franziska schuf er sich hier ein ganz besonderes Refugium. Die Mauern einer alten fränkischen Burg mussten daher dem imposanten spätbarocken Bau weichen. Mit dem „Dörfle“ entstand für Carl Eugen sogar eine Art Vergnügungspark seiner Zeit. Noch heute stehen die maßstabsgetreuen Bauten: das römische Wirtshaus oder das Spielhaus. Dennoch blicken wir mit einem Wehmutstropfen auf diese Zeit, mussten doch Untergebene deren Bewohner spielen. Und so fand sich manch einer in einer Rolle, die nicht seinem eigentlichen Beruf entsprach.
Die Nachfolger Carl Eugens zeigten unterdessen wenig Interesse an der Sommerresidenz und gaben die Anlage dem Verfall preis. Erst König Wilhelm I. gründete 1818 hier eine Landwirtschaftliche Unterrichts-, Versuchs- und Musteranstalt. Heute sind Schloss Hohenheim und der Park Teil der Universität.
Vorbei am Schloss, durch die imposanten Baumbestände, entlang der Pappelallee und dem Weinberg genossen die Besucher die Aussicht, die sich ihnen bot. Gespickt mit den leerreichen Einstreuungen unseres Führers. Mit gekonntem Blick fürs Detail und einem, so scheint es, unerschöpflichen Wissensschatz führte Prof. Steiner durch sein Hohenheim: hin zu den prächtigen Gehölzen, darunter Mammutbäume, zahlreiche Magnolienarten, der Flügelnuss, dem Gingko oder dem Riesen-Lebensbaum und durch den exotischen Garten. Über die Jahrhunderte ist der Schlosspark zu einem sehenswerten Arboretum geworden, in dem bewahrt und gleichzeitig zukunftsfähig geforscht wird.
|
|
|
|
|
|
|
|
|
| |
|
|
|
|
Ein lehrreicher Spaziergang durch den Park von Schloss Hohenheim
Bilder: Ariane Schröfel
–
–
|
|
|
|
|
|
|
Langjähriger AGD-Vorsitzender gestorben
Am 8. Juli 2016 verstarb Günter Frank nach schwerer Krankheit im Alter von 77 Jahren.
|
|

–
Günter Frank 2009
Bild: privat
|
|
Günter Frank wuchs in Markgröningen auf und wurde Rektor an der Glemstal-Grundschule in Unterriexingen. Hier gehörte er von 1971 bis 1972 dem Gemeinderat an und setzte sich für den Anschluss Unterriexingens an seine Heimatstadt ein, der zum 1.1.1973 vollzogen wurde. Danach war er Stadtrat in Markgröningen, bis er 1976 nach Aurich zog.
|
|
|
Unserer Stadt und dem Arbeitskreis Geschichtsforschung und Denkmalpflege blieb der Lokalpatriot stets eng verbunden und wurde 2000 zum AGD-Vorsitzenden gewählt. Während seiner Amtszeit publizierte der AGD drei Ausgaben der Reihe Durch die Stadtbrille, eine Festschrift zum 40-jährigen Vereinsjubiläum und die „Kurzweiligen Begegnungen mit der Stadt und ihrer Geschichte”. Den AGD vertrat Günter Frank im Festausschuss zum Schäferlauf, wirkte an der Überarbeitung des Festprogramms am Sonntag mit, initiierte die Festzuggruppe der Spitalbrüder und führte nicht zuletzt die Stadtführungen zum Schäferlauf ein. Diese stießen auf so große Resonanz, dass alsbald drei Führer zugleich unterwegs waren. Darüber hinaus arbeitete er an der Entwicklung des Stadtspiels mit und engagierte sich insbesondere für die Renovierung der Bartholomäuskirche und des wertvollen Taufsteins. Darüber zu schreiben, schaffte er nicht mehr. Zum Jahresende 2014 musste Günter Frank den AGD-Vorsitz krankheitsbedingt aufgeben. Beim Schäferlauf 2015 führte er, geschwächt durch die Krebstherapie, letztmals eine Gruppe durch die Stadt. Am Mittwoch, den 13. Juli 2016, wurde er in Aurich bestattet. Den Trauergottesdienst hielt auf seinen Wunsch der hiesige Pfarrer Traugott Plieninger, den Nachruf sein langjähriger Weggefährte und Freund Gerhard Liebler.
Wir trauern um einen engagierten Mitstreiter und Vorstand, Autor und Stadtführer und werden ihn in guter Erinnerung behalten.
–
|
| |
|
Die ehrwürdigen Türme der Bartholomäuskirche und das monumentale Rathaus – überhaupt das historische Erbe der Stadt – beeindruckten Gerhard Liebler, als er 1954 mit seinem Motorrad hier ankam. Der neue Lehrer an der Ludwig-Heyd-Schule erlag sogleich dem Charme der Stadt; ihre Geschichte ließ ihn nicht mehr los. Über Jahrzehnte schweifte sein Blick in die Vergangenheit: als Gründungs-, Vorstands- und Beiratsmitglied des AGD, als Chronist, als Autor zahlreicher Artikel sowie als Stadtführer. Über hundert Gruppen und berühmte Gäste lauschten seinen Ausführungen und ließen sich von ihm führen. Darunter auch Walter Momper (1989–2001 Regierender Bürgermeister von Berlin), der besonders
|
 |
|
beeindruckt von unserem roten Rathaus war. Etwa ebenso so lange wie im AGD, dessen Fachbeirat er bis heute angehört, war Gerhard Liebler im Gemeinderat aktiv um das Wohl der Stadt und ihrer Bürger bedacht. Wir gratulieren ihm herzlich zu dieser besonderen Auszeichnung!
|
|
–
Gerhard Liebler (links) erhielt am 4. Juli von Bürgermeister Rudolf Kürner die Ehrenmedaille der Stadt
Bild: Ariane Schröfel
|
|
|
|
| |
Rückblick auf die Mitgliederversammlung am 9. März 2016
Mit einem neuen Logo startete der Arbeitskreis ins laufende Geschäftsjahr: Neben der Abkürzung AGD steht nun der 1596 von Jakob Ramminger fürs Wappen von „Ampt und Vogtey Grüningen“ verwendete Reichsadler. Dieser repräsentiert im neuen Emblem den historischen Kontext und die Stadt. Die Mitgliederversammlung genehmigte das von Roswitha Feil und Peter Fendrich entworfene Logo ohne Gegenstimme. Nur eines von vielen Projekten, die Vorstand und Fachbeirat für 2016 auf ihre Agenda nahmen. Dazu kamen
– die neue Homepage, die zu einem lokalen Geschichtsportal ausgebaut werden soll,
– die Wiederbelebung der historischen Reihe „Durch die Stadtbrille“,
– der Jahresausflug nach Memmingen und Ottobeuren,
– eine weitere Plus-Briefmarke zu Ehren Herzog Christophs,
– das Programm zum Tag des Offenen Denkmals am 11. September und
– das Thema des Jahres: 100 Jahre Bahnanschluss.
Zur Finanzierung der neuen Aktivitäten wurde die Erhöhung des Mindestbeitrags auf 24 Euro pro Jahr beschlossen. Verbunden mit einer Beitragsbefreiung für Mitglieder bis zum Alter von 24 Jahren. Als Gegenleistung erhalten Mitglieder künftig von neuen Ausgaben der AGD-Reihe „Durch die Stadtbrille” jeweils ein Freiexemplar. Neumitglieder bekommen zur Begrüßung eine bereits erschienene Ausgabe der Stadtbrille ihrer Wahl geschenkt.
Die Vorstandsmitglieder Dr. Walter Ebner (1. Vorsitzender), Peter Ebeling (3. Vorsitzender) und Kurt Roller (Kassier) wurden in ihren Ämtern bestätigt. Kraft seines Amtes bleibt Bürgermeister Rudolf Kürner 2. Vorsitzender. Zur neuen Schriftführerin wählte die Versammlung Ariane Schröfel. Den Beirat bilden weiterhin Hermann Beck, Rudolf Dürr, Roswitha Feil, Peter Fendrich, Prof. Dr. Walter Kern, Gerhard Liebler, Dr. Barbara Löffler, Heinz Oechsner und David Zechmeister.
Vor 40 Jahren trat Dr. Monika Balzert dem Arbeitskreis bei und brachte seither zahlreiche Impulse und etliche Artikel für die Stadtbrille ein, wofür sie vom Vereinsvorsitzenden Walter Ebner im Rahmen der Versammlung geehrt wurde.
Der Kunstschmied Peter Klink ist nicht nur ein Meister seines Fachs, sondern kennt sich auch mit Bauplänen mittelalterlicher Städte aus. Mit einem Studium der UNESCO war es ihm möglich, sich in Sachen Denkmalpflege, Kunst- und Baugeschichte fortzubilden. Durch den Abgleich der Stadtpläne von Pfullendorf und anderen stauferzeitlichen Gründungen gelang ihm der Nachweis, dass sich unsere Vorfahren sehr wohl Gedanken über Stadtplanung gemacht haben – mehr sogar, als wir heute denken. So lassen sich Gesetzmäßigkeiten und geometrische Muster erkennen, die manch einen Zuhörer staunen ließen. Denn auch in Markgröningen finden sich Hinweise für einen Stadtausbau nach geometrischen Mustern. Mehr zu Klinks Arbeit findet sich unter www.stadtplanung-108grad.de.
|
|
|
Rückblick auf den Jahresausflug am 6. Juni 2016
Beim Jahresausflug begaben sich Mitglieder des AGD in Memmingen auf Spurensuche in Sachen Heilig-Geist-Spital und Reformation. Stadtarchivar Christoph Engelhard führte die Gruppe kompetent durch die ehemalige Reichsstadt mit gut erhaltenem Mauerring. Hier wirkten um 1525 die Reformatoren Christoph Schappeler und Sebastian Lotzer. Ihre revolutionären Gedanken, die sich von hier aus verbreiteten, sollten das Land grundlegend verändern. Während Schappeler hier predigte, griff Lotzer zur Feder und verfasste die Zwölf Artikel der Bauern, die für die Zeit wegweisende Ideen enthielten und heute als erste Formulierung von Menschenrechten gelten.
|
 |
|
 |
| |
|
|
|
Stadtarchivar Christoph Engelhard (2. v. links) führt durch Memmingens Stadtkern
Bild: Monika Balzert
|
|
Pater Rupert stellt Kloster Ottobeuren vor
Bild: Monika Balzert
|
Den Nachmittag verbrachte die Gruppe in Ottobeuren bei einer ebenso interessanten Führung durch die barocke Klosteranlage, die im 18. Jh. in einem Wurf erbaut wude. Pater Rupert referierte humorvoll über das Klosterleben und die Reformation aus klösterlicher Sicht. Zum Dank sangen einige Markgröninger in der Benedikt-Kapelle das Salve Regina, das Mariengebet, mit dem die Benediktiner traditionell den Tag beenden.
|
|

AGD-Mitglieder vor der Klosterkirche in Ottobeuren
Bild: Monika Balzert
|
|
|
|
 |